Heritage City Sec 2 4 bedroom Mobile House For Sale
21760 Nw 3rd St, Pembroke Pines, FL 33029

$296,000
Sold
Mila Bogatov
Mila Bogatov
Luxury Real Estate Broker

Details


  • MLS Number:A11905330
  • Virtual Tour: YES
  • List Price: $279,000
  • Sold Price: $296,000
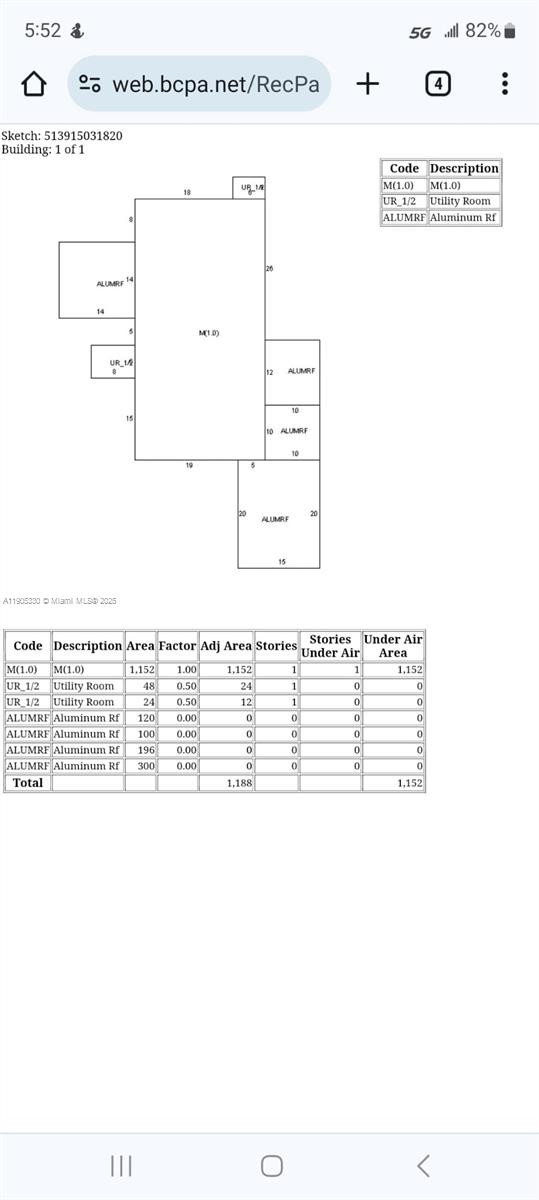
  • Living Area: 1188 Ft² / 110 M²
  • Price Per Foot/Meter: $249 / $2,682
  • Bedrooms:4
  • Full Baths:2
  • Maintenance:$103
  • Taxes:$4,051
  • Year Built:1982
  • Listing Date:October 30, 2025
  • Sold Date: May 20, 2026
  • Days On Market:201

Description


Tranquility sanctuary rare to find. Double wide Manufactured home with 3/2 plus an additional room that can be used at den a/o four bed a/o office a/o buyer choice/desire/need. Good news YOU OWN THE LAND. Refreshed updated renovation: new floor, kitchen, baths, appliances, etc. Freshly exterior paint. No rental restriction. Shed that is used as laundry room, but with space for your tool. Community include club house, gym lake, pool, tennis/basketball courts, play ground. Low HOA ($103/m)

Features


  • Floor:Vinyl
  • Interior Feature:BedroomOnMainLevel, FirstFloorEntry
  • Exterior Feature:None

Location


Request Information
Mila Bogatov
Mila Bogatov
Luxury Real Estate Broker