Hollywood Park 3 bedroom Single Family House For Sale
2527 Arthur St, Hollywood, FL 33020

$370,000
Sold
Mila Bogatov
Mila Bogatov
Luxury Real Estate Broker

Details


  • MLS Number:A11065796
  • Virtual Tour: YES
  • List Price: $370,000
  • Sold Price: $370,000
  • Living Area: 2324 Ft² / 216 M²
  • Price Per Foot/Meter: $159 / $1,714
  • Bedrooms:3
  • Full Baths:2
  • Taxes:$3,885
  • Year Built:1946
  • Listing Date:July 3, 2021
  • Sold Date: August 6, 2021
  • Days On Market:33

Description


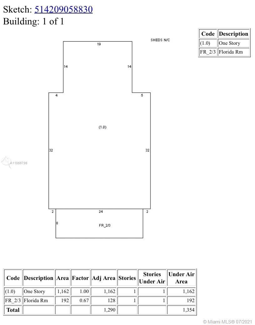
No HOA. Stainless steel appliances. New roof and tankless water heater. Fresh paint. New Tile the living sq ft 1354

Features


  • Floor:Tile
  • Interior Feature:BedroomonMainLevel, FirstFloorEntry
  • Exterior Feature:

Location


Request Information
Mila Bogatov
Mila Bogatov
Luxury Real Estate Broker