Bayshore Unit No 3 For Sale
545 Ne 55 Terrace, Miami, FL 33137

$425,000
Sold
Mila Bogatov
Mila Bogatov
Luxury Real Estate Broker

Details


  • MLS Number:A10532481
  • Virtual Tour: YES
  • List Price: $495,000
  • Sold Price: $425,000
  • Taxes:$8,512
  • Listing Date:September 7, 2018
  • Sold Date: March 12, 2019
  • Days On Market:185

Description


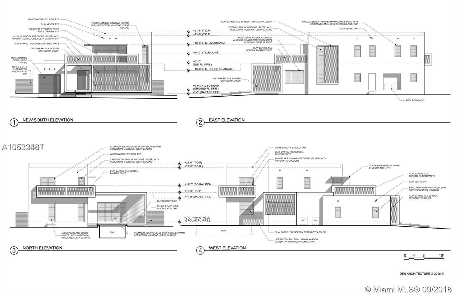
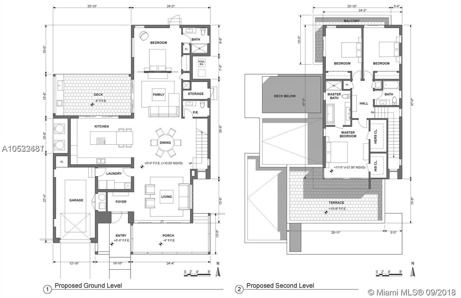
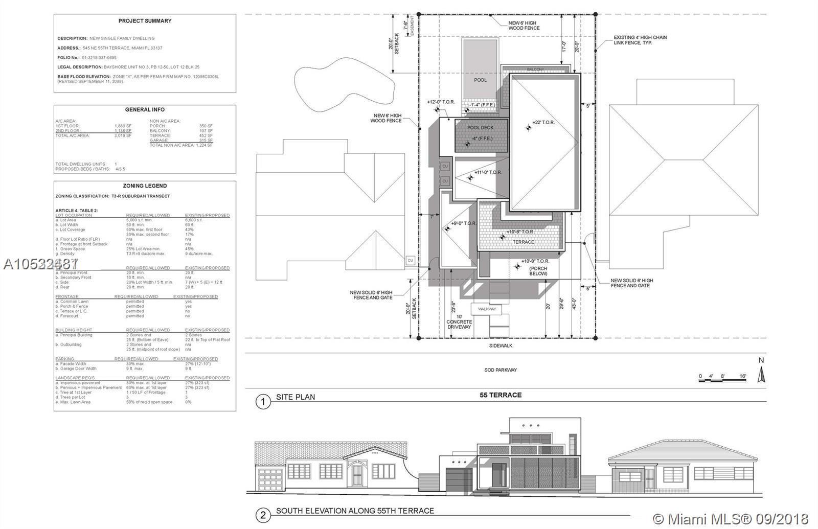
CLICK ON VIRTUAL TOUR>>>Opportunity to build your dream home in the historic waterfront neighborhood of Morningside located in Miami. This 6,600 square foot vacant lot (60sf x 110sf) is being sold with historical board approved architecture to build a 4,200+/- sq ft, two story, 4 bedroom and 3.5 bathroom home with a pool. Property is located on a quiet tree lined street just one block away from the open bay with boat ramp. Community amenities include tennis & basketball courts, baseball field, playground, and pool. Morningside is a gated community nestled between Biscayne boulevard & Biscayne Bay and located minutes from Wynwood, Design center, Edgewater, Midtown, Miami Beach.

Virtual Tour


Request Information
Mila Bogatov
Mila Bogatov
Luxury Real Estate Broker