Veranda Condominiums 2 bedroom Condo For Sale
6070 National Blvd, Unit 215, Ave Maria, FL 34142

$355,000
For Sale
Mila Bogatov
Mila Bogatov
Luxury Real Estate Broker

Details


  • MLS Number:A11620681
  • Virtual Tour: YES
  • Unit Number:215
  • List Price: $355,000
  • Living Area: 1366 Ft² / 127 M²
  • Price Per Foot/Meter: $260 / $2,797
  • Bedrooms:2
  • Full Baths:2
  • Maintenance:$750
  • Taxes:$4,597
  • Year Built:2021
  • Waterfront:YES
  • Listing Date:July 9, 2024
  • Days On Market:673

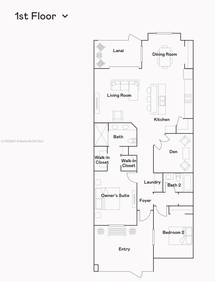
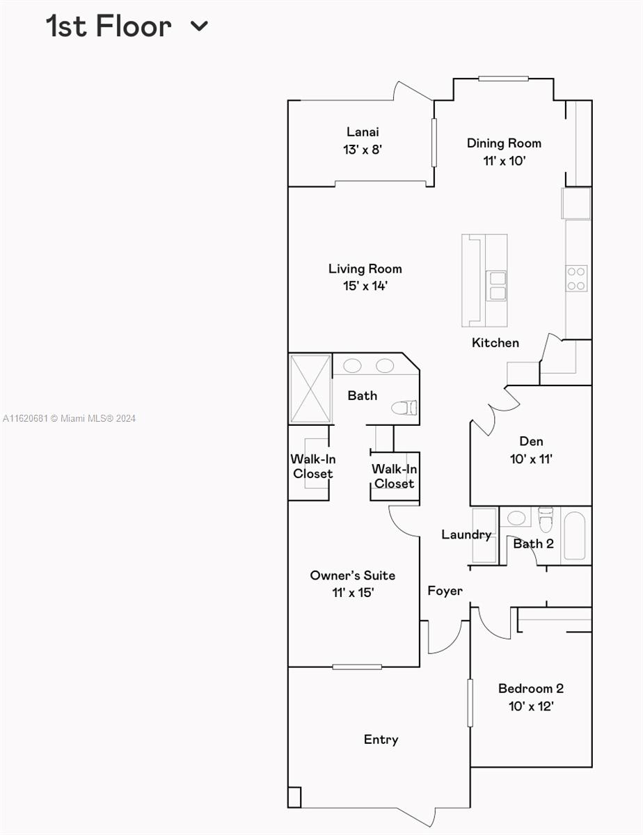
Description


Lake front 2 Bedroom + Den , 2 Baths split floor plan with lake views. Golf membership included. Exceptional end unit Diangelo II floorpan! 1st floor unit offers 2 bedrooms + a den and 2 full bathrooms and a 1 car garage. This unit has amazing views of the lake and hole 14 of the golf course at the prestigious Gordon Lewis designed course at the National Golf and Country Club. Gated community offers true country living with full spa, gym, pool, restaurants, pickleball, tennis, bocce ball, chickee bar and unlimited golf! Unit is walking distance to all amenities. Upgrades include crown molding, custom window treatments, custom paint, ceiling lights, glass shower enclosures...and much more

Features


  • Floor:CeramicTile
  • Interior Feature:BuiltInFeatures, BreakfastArea, ConvertibleBedroom, DualSinks, EatInKitchen, FirstFloorEntry, Other, SplitBedrooms, WalkInClosets, Bar
  • Exterior Feature:EnclosedPorch, Fence, SecurityHighImpactDoors
  • Waterfront:LakeFront

Location


Request Information
Mila Bogatov
Mila Bogatov
Luxury Real Estate Broker