Coral Manor Fourth Add 2 bedroom Single Family House For Sale
340 Se 4th St, Deerfield Beach, FL 33441

$425,000
New For Sale
Mila Bogatov
Mila Bogatov
Luxury Real Estate Broker

Details


  • MLS Number:A11985020
  • Virtual Tour: YES
  • List Price: $425,000
  • Living Area: 1160 Ft² / 108 M²
  • Price Per Foot/Meter: $366 / $3,944
  • Bedrooms:2
  • Full Baths:1
  • Taxes:$1,167
  • Year Built:1960
  • Listing Date:March 18, 2026
  • Days On Market:26

Description


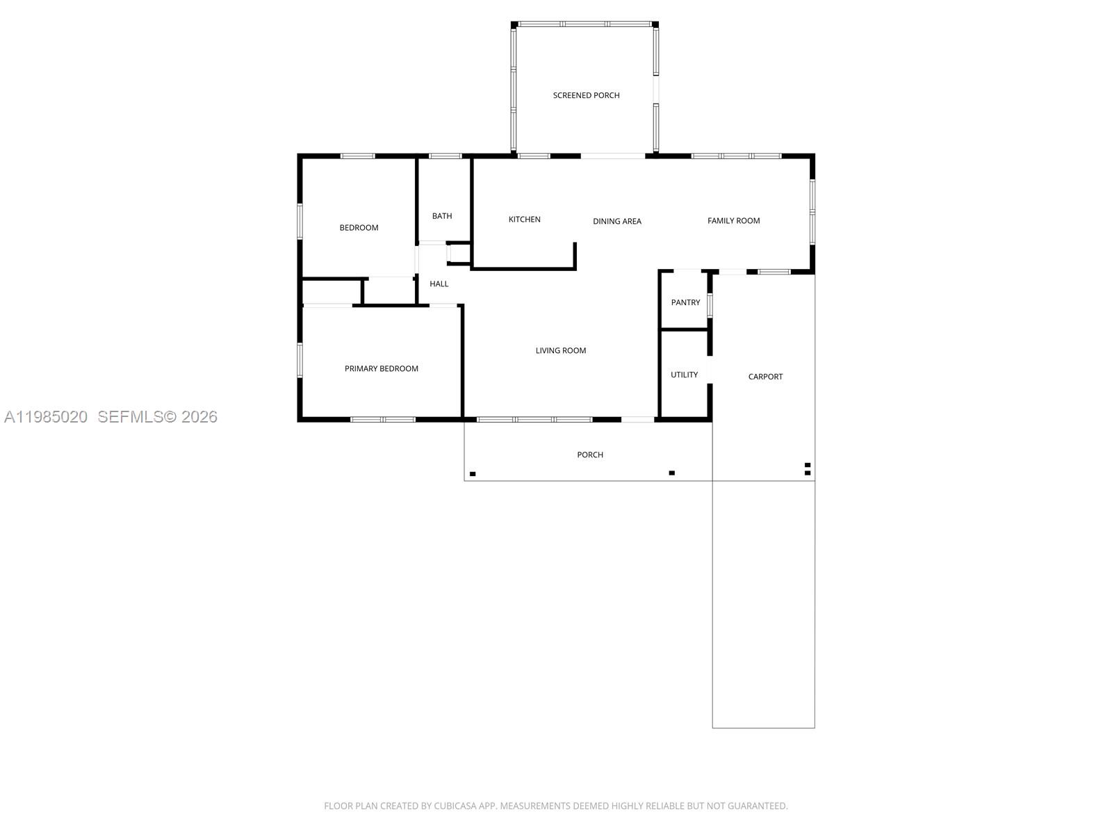
Bike to the beach and enjoy waterfront dining at The Cove Waterfront Restaurant from this well-located home in Deerfield Beach. Some photos are virtually staged. Features include a newer roof, impact windows, terrazzo floors in the bedrooms, and tile throughout the main living areas (with terrazzo underneath). The layout offers a dining room, attached carport, and a screened back porch for relaxing outdoor living. Kitchen and bath are ready for your updates—an excellent opportunity to create your own South Florida retreat.

Features


  • Floor:Terrazzo, Tile
  • Interior Feature:BedroomOnMainLevel, FirstFloorEntry
  • Exterior Feature:Porch

Location


Request Information
Mila Bogatov
Mila Bogatov
Luxury Real Estate Broker