Hibiscus Gardens Amended For Sale
1421 Sw 24th Ct, Fort Lauderdale, FL 33315

$830,000
Sold
Mila Bogatov
Mila Bogatov
Luxury Real Estate Broker

Details


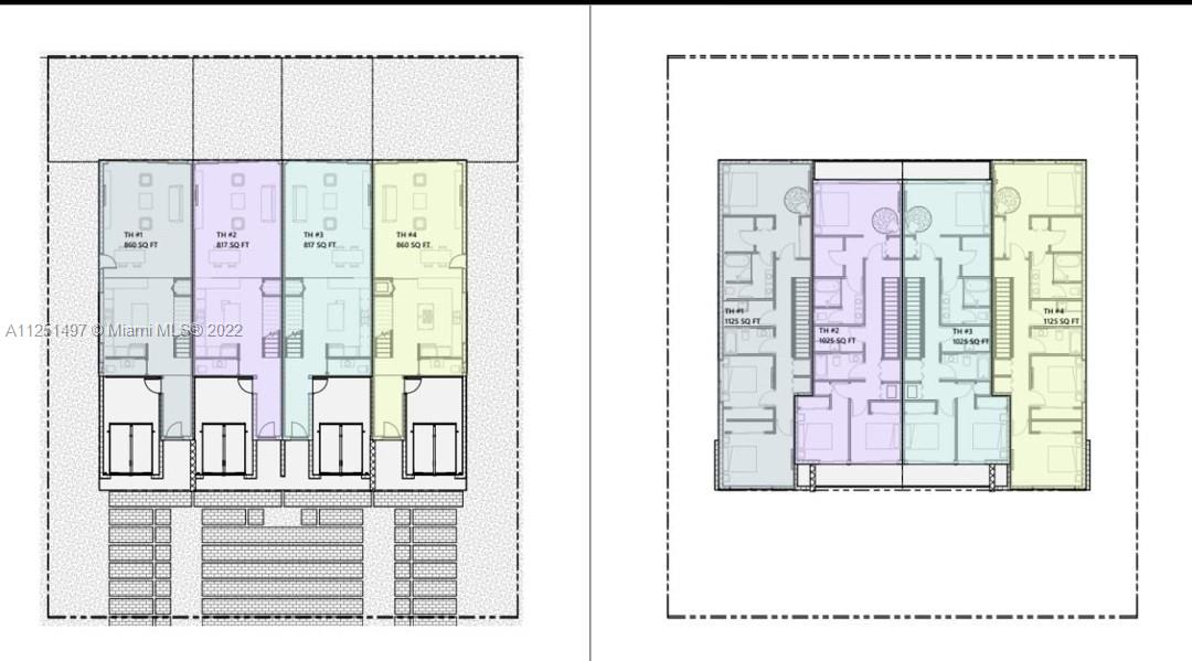
  • MLS Number:A11251497
  • Virtual Tour: YES
  • List Price: $850,000
  • Sold Price: $830,000
  • Taxes:$1,495
  • Listing Date:August 6, 2022
  • Sold Date: February 15, 2023
  • Days On Market:192

Description


Investor's special!! Four townhomes ready to be built, with already city approved plans. Each townhouse consists of 3 bedrooms 2.5 baths + garage + private garden, approximate square footage 2,000 sq ft. This lot is ready to break ground and start building. Great Fort Lauderdale location. Conveniently located near major highways, downtown, airport and much more! Additional information upon request.

Location


Request Information
Mila Bogatov
Mila Bogatov
Luxury Real Estate Broker