Orange Tree Homes 4 bedroom Single Family House For Sale
1040 Sw 128th Dr, Davie, FL 33325

$394,999
Sold
Mila Bogatov
Mila Bogatov
Luxury Real Estate Broker

Details


  • MLS Number:A10926352
  • Virtual Tour: YES
  • List Price: $399,999
  • Sold Price: $394,999
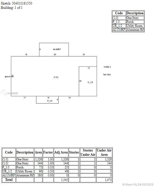
  • Living Area: 1326 Ft² / 123 M²
  • Price Per Foot/Meter: $298 / $3,206
  • Bedrooms:4
  • Full Baths:2
  • Taxes:$2,405
  • Year Built:1986
  • Listing Date:September 14, 2020
  • Sold Date: November 5, 2020
  • Days On Market:51

Description


Beautifully Maintained, 4 Bedroom, 2 Bath Ranch Home in Davie with Family Room, Living Room, Dedicated Dining Room & More! Eat-in Kitchen with Stainless Steel Appliances (3-5 years old), Pantry. Renovated Baths: Corian Countertops, Wood Cabinets. Oak and Engineered Wood Floors, Tile, Carpet. A/C Handler-2016, Coils Replaced in 2019. H/W 2017. Interior recently Painted. Large Fenced Yard with 2 Insulated, Electrified Sheds-Double Gate for RV or Boat Access, Avocado Tree, Sprinklers run off of Lake. Hurricane Shutters. No HOA. BCPA updated sketch to reflect ttl living sq ft of 1470. Conveniently located to A-rated Schools, Highways, Shoppes, Restaurants. This One Will Not Last!

Features


  • Floor:Carpet, CeramicTile, Wood
  • Interior Feature:BedroomonMainLevel, BreakfastArea, FirstFloorEntry
  • Exterior Feature:EnclosedPorch, Fence, FruitTrees, Shed

Location


Request Information
Mila Bogatov
Mila Bogatov
Luxury Real Estate Broker