Old Cutler Estates Sec 1 4 bedroom Single Family House For Sale
6960 Sw 148th Ter, Palmetto Bay, FL 33158

$1,825,000
For Sale
Mila Bogatov
Mila Bogatov
Luxury Real Estate Broker

Details


  • MLS Number:A11845868
  • Virtual Tour: YES
  • List Price: $1,825,000
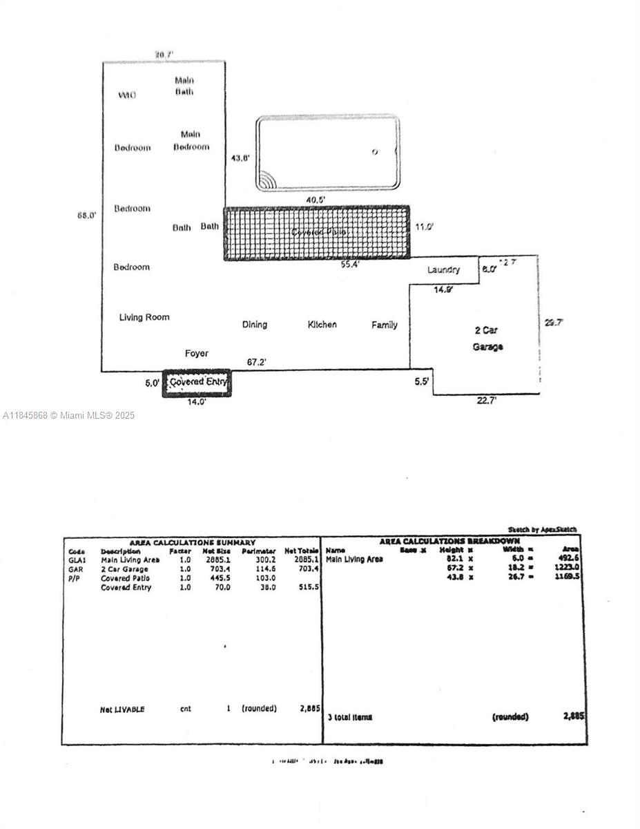
  • Living Area: 2838 Ft² / 264 M²
  • Price Per Foot/Meter: $643 / $6,922
  • Bedrooms:4
  • Full Baths:3
  • Taxes:$6,916
  • Year Built:1969
  • Listing Date:July 24, 2025
  • Days On Market:274

Description


Impact windows/doors. 2018 concrete roof tile. Exceptional 4/3 Palmetto Bay home designed for comfort, entertaining, and outdoor living. Ideally located near top-rated public/private schools, parks, shops, and bike paths in a quiet residential area. The spacious primary suite features his and hers walk-in closets, an updated in-suite bath with dual showers/sinks, and its own tankless water heater. The large kitchen boasts wood cabinetry, granite countertops, and an L-shaped counter with seating capacity for 4. Open living, dining, and family areas offer easy flow, with French doors throughout connecting indoor and outdoor spaces. Includes oversized 2-car garage, dedicated laundry room with cabinetry and utility sink. Short term leaseback agreement preferred.

Features


  • Floor:Tile
  • Interior Feature:BuiltInFeatures, BedroomOnMainLevel, DualSinks, FrenchDoorsAtriumDoors, FirstFloorEntry, Pantry, Bar, WalkInClosets
  • Exterior Feature:Deck, Fence, SecurityHighImpactDoors, Porch

Location


Request Information
Mila Bogatov
Mila Bogatov
Luxury Real Estate Broker