Windward Cay 3 bedroom Condo For Sale
4700 Yacht Harbor Dr, Unit 612, Naples, FL 34112

$460,000
For Sale
Mila Bogatov
Mila Bogatov
Luxury Real Estate Broker

Details


  • MLS Number:A11871640
  • Virtual Tour: YES
  • Unit Number:612
  • List Price: $460,000
  • Bedrooms:3
  • Full Baths:2
  • Maintenance:$5,668
  • Taxes:$4,882
  • Year Built:2003
  • Listing Date:September 3, 2025
  • Days On Market:269

Description


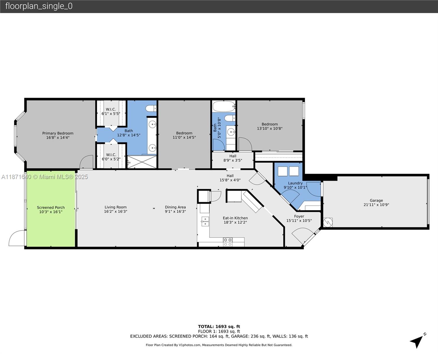
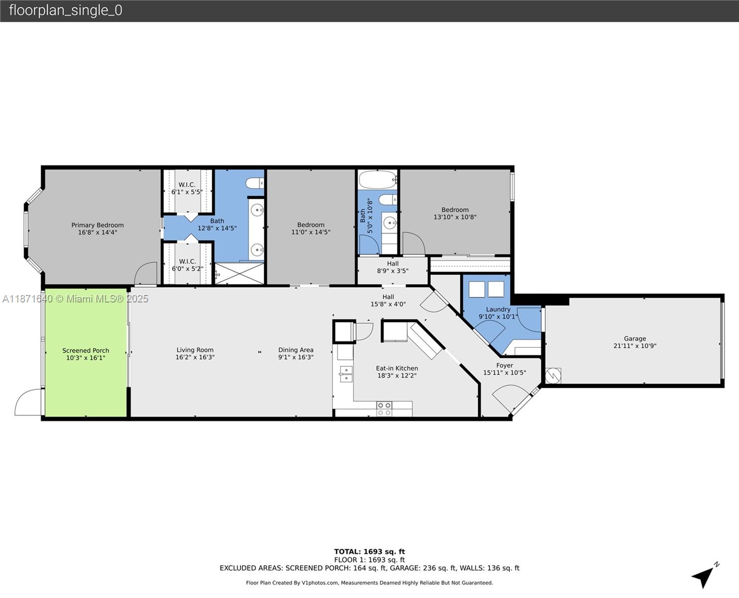
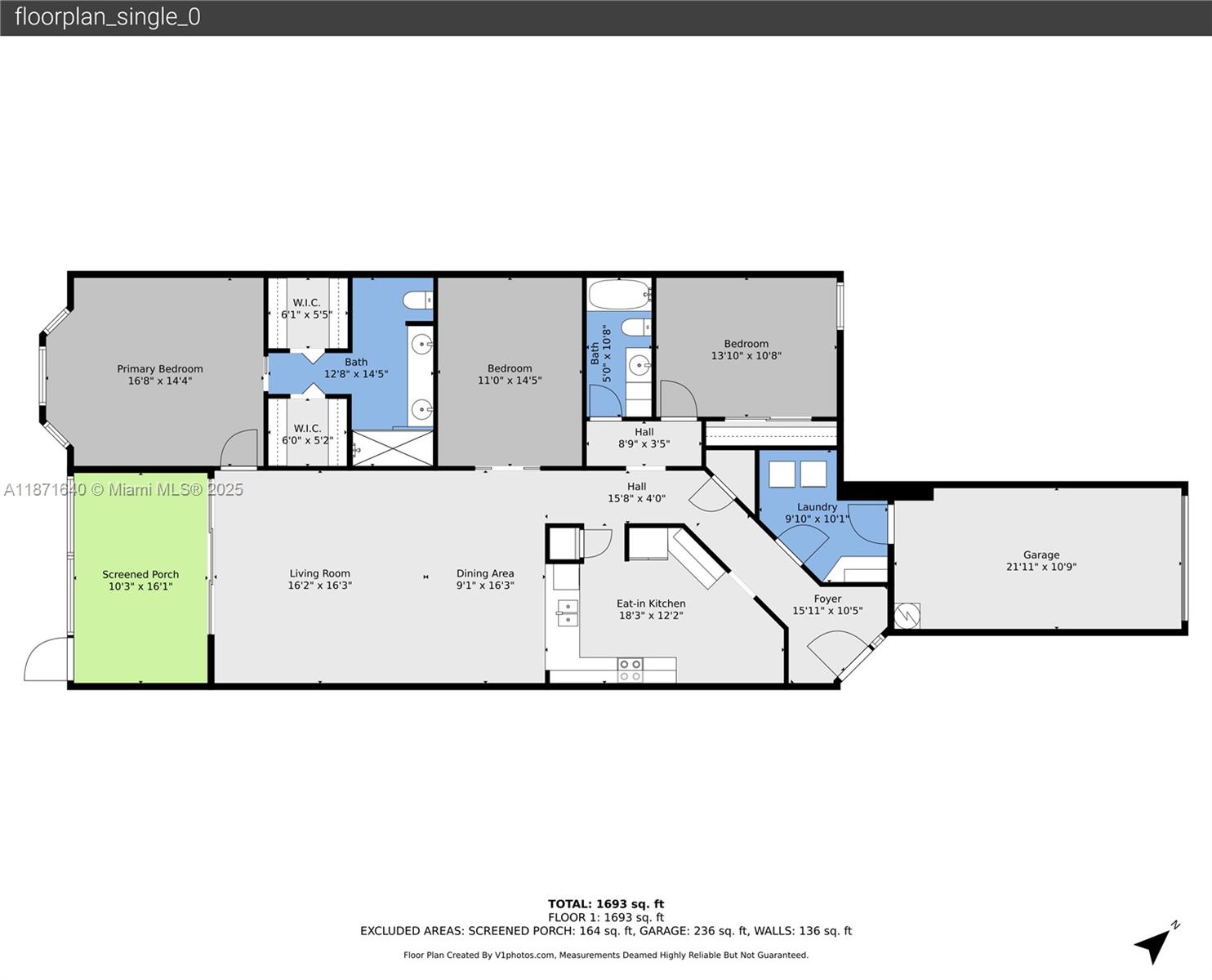
Exceptional Value – Lowest-Priced Home in Windstar on Naples Bay! This beautifully maintained 1st-floor condo features 2 bedrooms, 2 bathrooms, a den, vaulted ceilings, crown molding, plantation shutters, and a 1-car garage—just steps from the pool. With nearly 1,800 sq ft, the screened lanai overlooks lush landscaping and the scenic 7th tee. A fully paid reverse osmosis system adds comfort and value. Windstar offers direct Gulf access, boat shuttle to Keewaydin, 72-slip marina, new clubhouse with waterfront dining, plus golf, tennis, bocce, fitness, and active social events. Minutes to Bayshore Arts District & 5th Ave South—ideal for seasonal, full-time, or investment living.

Features


  • Floor:Carpet, Tile
  • Interior Feature:BreakfastBar, BedroomOnMainLevel, BreakfastArea, ClosetCabinetry, DualSinks, EatInKitchen, FamilyDiningRoom, FirstFloorEntry, LivingDiningRoom, MainLevelPrimary, Pantry
  • Exterior Feature:Porch

Location


Request Information
Mila Bogatov
Mila Bogatov
Luxury Real Estate Broker