Paris Ests 3 bedroom Single Family House For Sale
7290 Sw 131st St, Pinecrest, FL 33156

$795,000
Sold
Mila Bogatov
Mila Bogatov
Luxury Real Estate Broker

Details


  • MLS Number:A10465562
  • Virtual Tour: YES
  • List Price: $795,000
  • Sold Price: $795,000
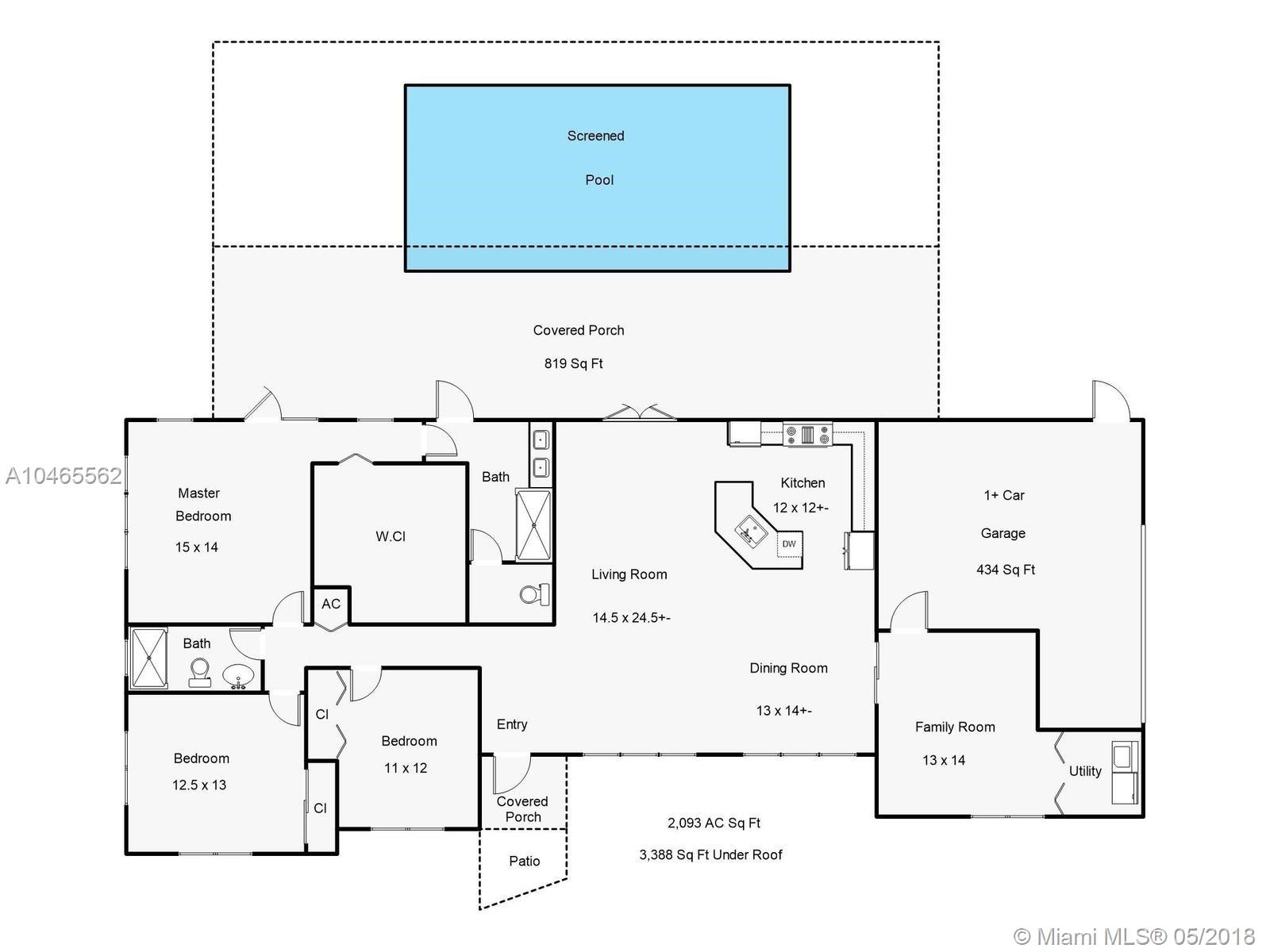
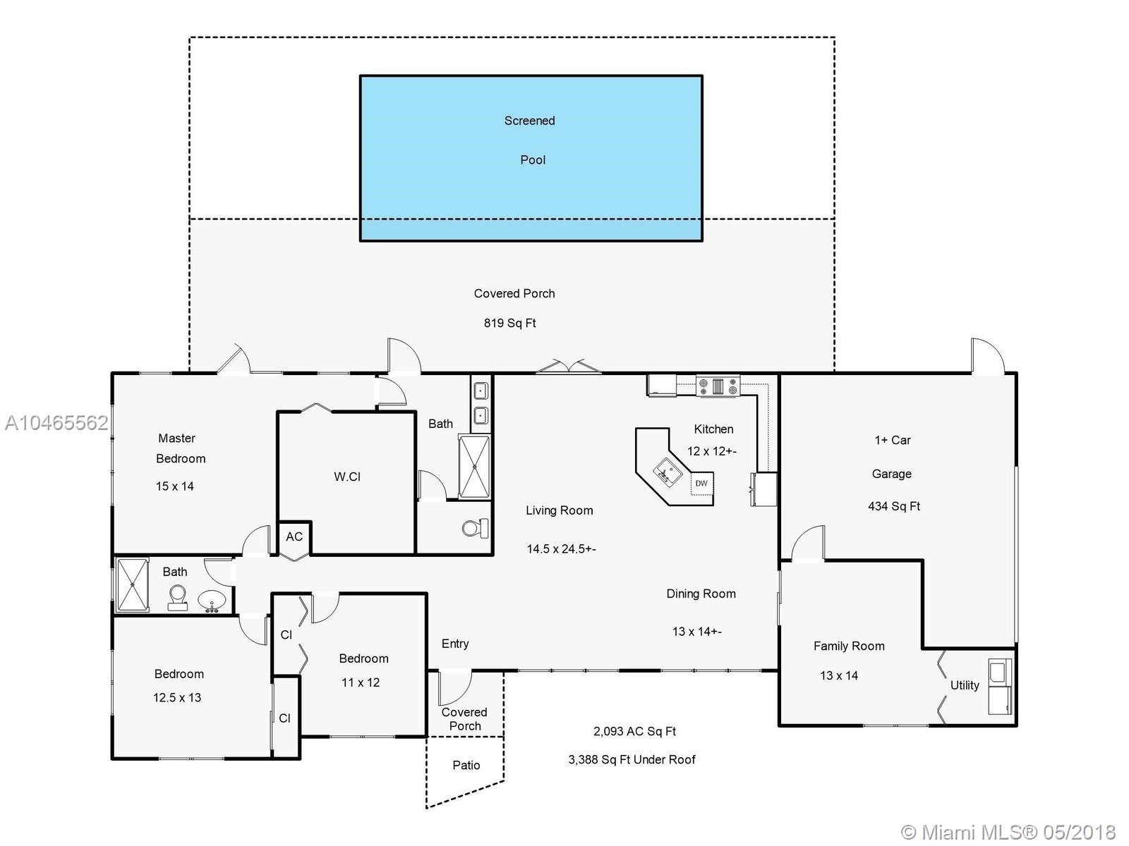
  • Living Area: 1774 Ft² / 165 M²
  • Price Per Foot/Meter: $448 / $4,824
  • Bedrooms:3
  • Full Baths:2
  • Taxes:$10,908
  • Year Built:1959
  • Listing Date:May 8, 2018
  • Sold Date: July 20, 2018
  • Days On Market:72

Description


Prime Pinecrest location! Walk to schools! Corner location - builder's 1/2 acre! Spacious floorplan - gorgeous one story home with 3 year old renovation! Wood porcelain tile flooring throughout. Beautiful kitchen, plantation shutters impact windows, large pool, covered terrace + domed screened patio, 1 - car garage! 4th bedroom option can be for office! Must see! Stunning!

Features


  • Floor:Tile
  • Interior Feature:EntranceFoyer, FamilyDiningRoom, FirstFloorEntry, Other
  • Exterior Feature:Fence
Request Information
Mila Bogatov
Mila Bogatov
Luxury Real Estate Broker