Surprise Lake 4 bedroom Single Family House For Sale
4534 Sheridan Ave, Miami Beach, FL 33140

$990,000
Sold
Mila Bogatov
Mila Bogatov
Luxury Real Estate Broker

Details


  • MLS Number:A10971208
  • Virtual Tour: YES
  • List Price: $990,000
  • Sold Price: $990,000
  • Living Area: 2187 Ft² / 203 M²
  • Price Per Foot/Meter: $453 / $4,873
  • Bedrooms:4
  • Full Baths:4
  • Taxes:$14,407
  • Year Built:1945
  • Listing Date:December 14, 2020
  • Sold Date: August 25, 2021
  • Days On Market:253

Description


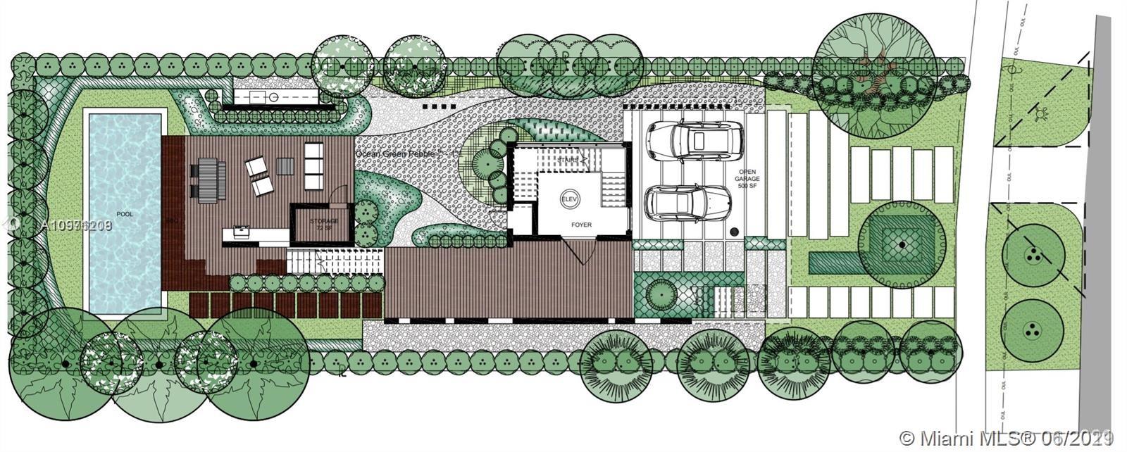
PROPERTY BEING SOLD FOR LAND VALUE AND WITH COMPLETE ARCHITECTURAL PLANS. Unparalleled location in the heart of Miami Beach! Surrounded by multimillion dollar residences. Steps from the most exclusive mansions on Pine Tree Drive, close to the RitzCarlton Residences,commercial and financial corridor at 41 St Street where you find the largest concentration of banks (11) in Miami Beach. Minutes away from the Forge restaurant, among several businesses. Beautiful and safe neighborhood, easy public transportation & local free trolley. Minutes away from Faena District, South Beach, the internationally recognized Mount Sinai Hospital,Surfside and Bal Harbour. Buyer agrees to buy with violations that will be resolved once a demolition permit is approved.See attachment for Architectural plans.

Features


  • Floor:Terrazzo, Wood
  • Interior Feature:FirstFloorEntry, MainLevelMaster, WalkInClosets
  • Exterior Feature:Patio

Location


Request Information
Mila Bogatov
Mila Bogatov
Luxury Real Estate Broker