Tropical Isle Homes Sub 4 3 bedroom Single Family House For Sale
355 Harbor Dr, Key Biscayne, FL 33149

$3,250,000
Sold
Mila Bogatov
Mila Bogatov
Luxury Real Estate Broker

Details


  • MLS Number:A11006658
  • Virtual Tour: YES
  • List Price: $3,350,000
  • Sold Price: $3,250,000
  • Living Area: 3238 Ft² / 301 M²
  • Price Per Foot/Meter: $1,004 / $10,804
  • Bedrooms:3
  • Full Baths:2
  • Taxes:$27,345
  • Year Built:1972
  • Listing Date:March 2, 2021
  • Sold Date: April 30, 2021
  • Days On Market:58

Description


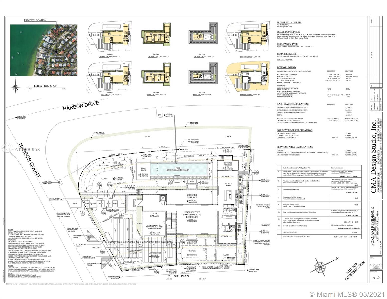
Complete approved project for a CMA Design, Architect, Cesar Molina 5941 SQFT under AC, 8517 SQFT total building 6 Bedroom 8 bath, Beautiful corner lot home with 3 levels, Front yard pool, Elevator, Enclosed 2 car garage Roof top cabana with bath, entertainment area with BBQ and roof top pool overlooking Key Biscayne, Biscayne Bay, and skyline. Ready to tear down and start construction. Tennant will leave March 23 Price is for land, plans and permit fees only. Cost of construction not included.

Features


  • Floor:Other
  • Interior Feature:BedroomonMainLevel, FirstFloorEntry
  • Exterior Feature:

Location


Request Information
Mila Bogatov
Mila Bogatov
Luxury Real Estate Broker