Coral Gables Sec A 4 bedroom Single Family House For Sale
1129 Sevilla Ave, Coral Gables, FL 33134

$690,000
Sold
Mila Bogatov
Mila Bogatov
Luxury Real Estate Broker

Details


  • MLS Number:A11025955
  • Virtual Tour: YES
  • List Price: $699,000
  • Sold Price: $690,000
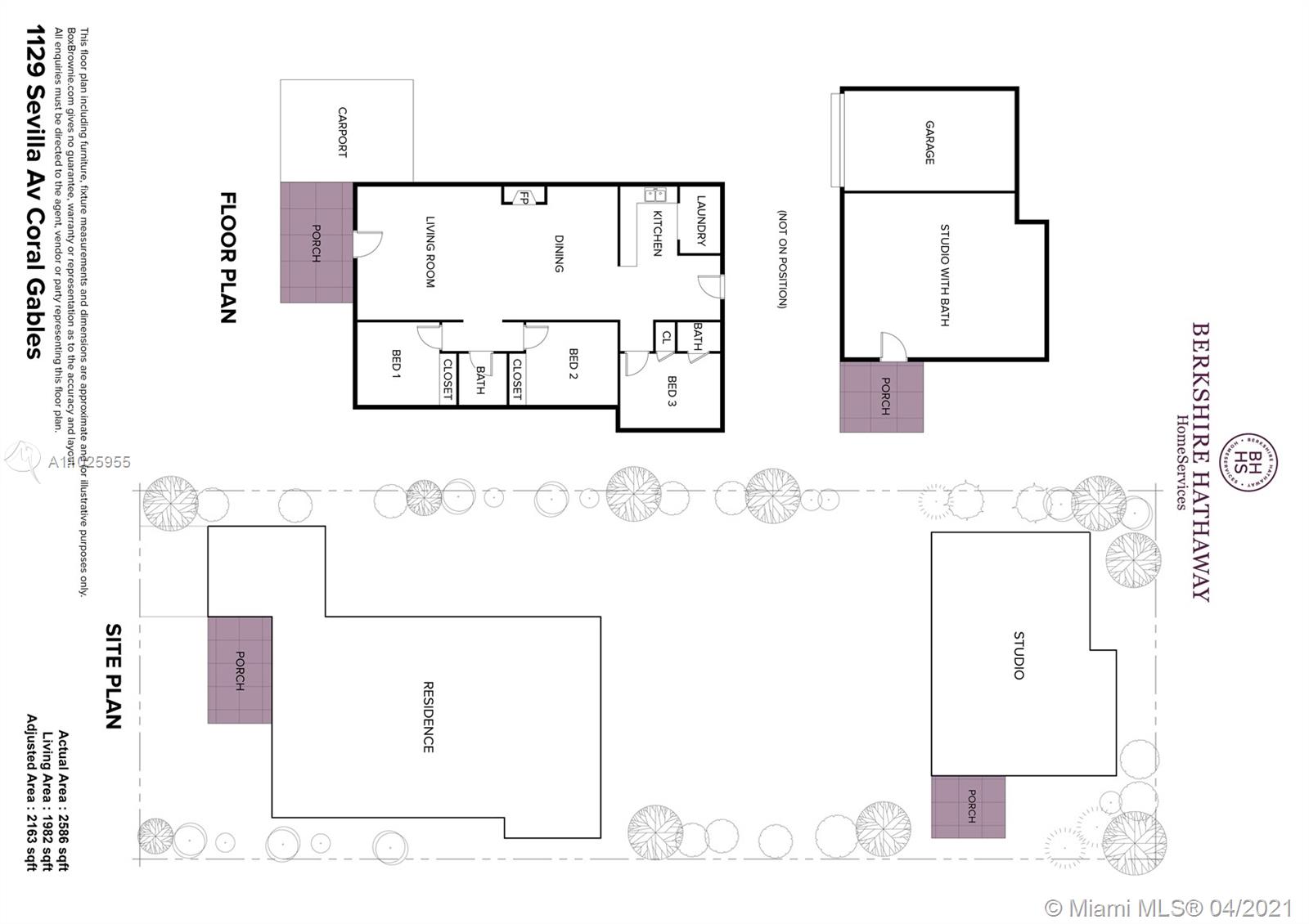
  • Living Area: 1892 Ft² / 176 M²
  • Price Per Foot/Meter: $365 / $3,926
  • Bedrooms:4
  • Full Baths:3
  • Taxes:$5,362
  • Year Built:1925
  • Listing Date:April 10, 2021
  • Sold Date: June 2, 2021
  • Days On Market:52

Description


Estate sale, subject to Court approval. Classic Coral Gables Old Spanish cottage 3/2 + 1/1 on 50 X 150 lot in prime, Biltmore Hotel neighborhood. Still adorable from the street view but this home needs absolutely 100% renovation and basically will need to be rebuilt due to extensive ceiling, floor and wall damage from roof leakage. Attention investors, developers, renovators - A+++ location and deep lot plus classic 1920's architecture warrant the investment in this property. No access to interior spaces due to unsafe conditions without signed waiver. Seller's attorney states it is in an historic district & City intends to designate it as an historic property, meaning that it will have to be restored & will not allow a different structure to be built there if it is designated as historic.

Features


  • Floor:Wood
  • Interior Feature:EntranceFoyer, Fireplace, MainLevelMaster
  • Exterior Feature:FruitTrees

Location


Request Information
Mila Bogatov
Mila Bogatov
Luxury Real Estate Broker