Amd Plat Of Sunset Lake S 7 bedroom Single Family House For Sale
3100 N Bay Rd, Miami Beach, FL 33140

$13,600,000
Sold
Mila Bogatov
Mila Bogatov
Luxury Real Estate Broker

Details


  • MLS Number:A11097557
  • Virtual Tour: YES
  • List Price: $14,500,000
  • Sold Price: $13,600,000
  • Bedrooms:7
  • Full Baths:5
  • Half Baths:5
  • Taxes:$110,670
  • Year Built:2020
  • Waterfront:YES
  • Listing Date:September 13, 2021
  • Sold Date: August 11, 2023
  • Days On Market:696

Description


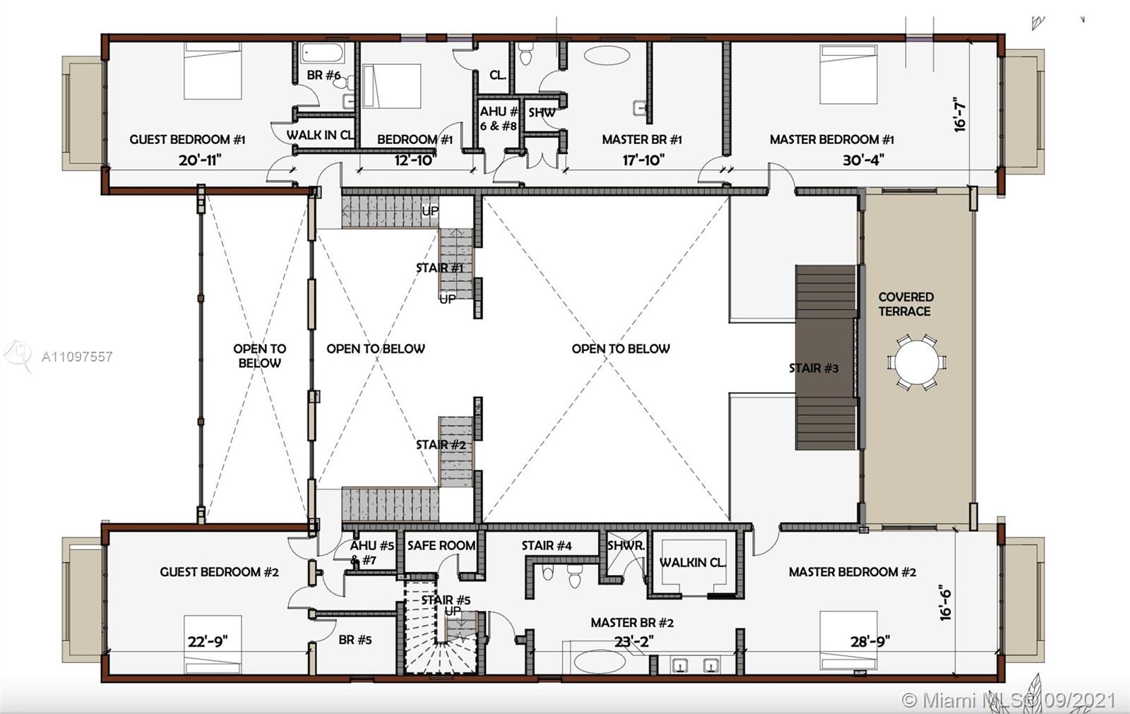
Rare opportunity to own your dream home on prestigious North Bay Road. Price reflects the lot, building permits, architectural plans and shell of the home. This extraordinary waterfront property offers a stunning panoramic view of downtown Miami. Enjoy unobstructed ocean access and 100 feet of water frontage while boasting an expansive 11,649 of luxurious living space designed by award winning architect to uniquely capture the essence of all the elements. Images displayed are only reflecting the visualization of the architectural plans (as per existing building permit). !0 Ft buffer Zone on left side of the property from street. Prince is non-negotiable.

Features


  • Floor:Other
  • Interior Feature:BedroomonMainLevel, BreakfastArea, DiningArea, SeparateFormalDiningRoom, EatinKitchen, FirstFloorEntry, Skylights, UpperLevelPrimary, VaultedCeilings, Atrium
  • Exterior Feature:Fence
  • Waterfront:BayFront

Location


Request Information
Mila Bogatov
Mila Bogatov
Luxury Real Estate Broker