Fairmont Acres Sec 2 5 bedroom Single Family House For Sale
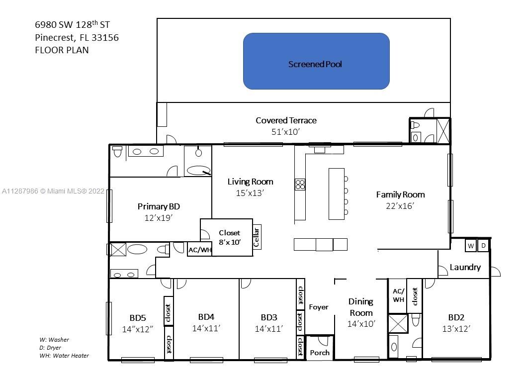
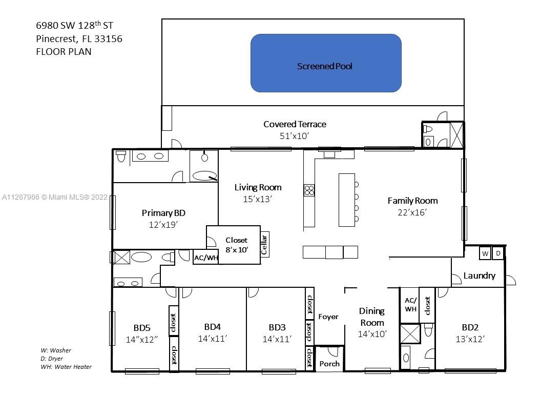
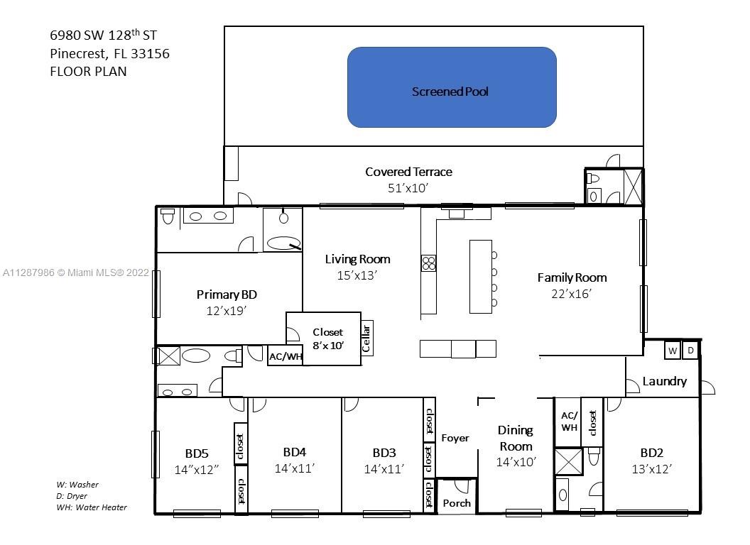
6980 Sw 128th St, Pinecrest, FL 33156

$2,000,000
Sold
Mila Bogatov
Mila Bogatov
Luxury Real Estate Broker

Details


  • MLS Number:A11287986
  • Virtual Tour: YES
  • List Price: $2,250,000
  • Sold Price: $2,000,000
  • Living Area: 3300 Ft² / 307 M²
  • Price Per Foot/Meter: $606 / $6,524
  • Bedrooms:5
  • Full Baths:4
  • Taxes:$10,239
  • Year Built:1964
  • Listing Date:October 13, 2022
  • Sold Date: February 16, 2023
  • Days On Market:125

Description


This beautifully remodeled Pinecrest home sits on a quiet corner of Palmetto Island. This home offers 5 bedrooms, 4 bathrooms, 2 separate living and dining areas and a bright laundry room. Two of the bedrooms are en-suite. This home is great for entertaining with spacious open areas and a custom wine cellar. The open layout is filled with natural light. The spacious kitchen features quartz countertops, SSl appliances and custom hood. All design elements have been carefully selected and customized to make this a unique home. The backyard features a large covered terrace, remodeled pool and deck, and a new outdoor kitchen. Enjoy the peace of mind of living in a fully remodeled home with a new roof, new impact windows, new ACs, new water heaters and updated plumbing. Designed by Porta Negra.

Features


  • Floor:CeramicTile, Tile
  • Interior Feature:BedroomonMainLevel, BreakfastArea, DiningArea, SeparateFormalDiningRoom, FamilyDiningRoom, FirstFloorEntry, SittingAreainPrimary
  • Exterior Feature:Barbecue, SecurityHighImpactDoors, Lighting, OutdoorGrill, Porch

Location


Request Information
Mila Bogatov
Mila Bogatov
Luxury Real Estate Broker