Heron Bay Bay Cove 4 bedroom Single Family House For Sale
7284 Nw 116th Way, Parkland, FL 33076

$790,000
Sold
Mila Bogatov
Mila Bogatov
Luxury Real Estate Broker

Details


  • MLS Number:A11552441
  • Virtual Tour: YES
  • List Price: $825,000
  • Sold Price: $790,000
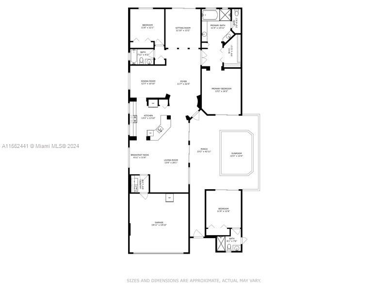
  • Living Area: 2234 Ft² / 208 M²
  • Price Per Foot/Meter: $354 / $3,806
  • Bedrooms:4
  • Full Baths:3
  • Maintenance:$527
  • Taxes:$8,064
  • Year Built:2002
  • Listing Date:March 22, 2024
  • Sold Date: May 21, 2024
  • Days On Market:59

Description


Simply a beautiful Courtyard Pool Home unique on its own, nestled in one of Parkland most sought after communities of Heron Bay. This Cayman model of 4-bedroom, 3 bathroom offers a perfect blend for families seeking both comfort and privacy. As you enter through the front door, a private courtyard welcomes you with its own pool. The separate bedroom is ideal for your guest and opens to the main living area with its grand foyer into the coziness of this home. Enjoy this home with a brand new 2022 Roof!, Freshly painted, 2021 AC unit with new air ducts, new pool pump motor, surround sound throughout the house and pool, large lot with no neighbors on the north side. Resort-style amenities:2 pools, tennis courts, playgrounds, racquetball & pickleball courts, and fitness centers! A+ schools.

Features


  • Floor:Carpet, CeramicTile, Wood
  • Interior Feature:BedroomonMainLevel, DiningArea, SeparateFormalDiningRoom, EntranceFoyer, FirstFloorEntry, GardenTubRomanTub, SplitBedrooms, SeparateShower
  • Exterior Feature:Porch, Patio, StormSecurityShutters

Location


Request Information
Mila Bogatov
Mila Bogatov
Luxury Real Estate Broker