Coral Gables Country Club 3 bedroom Single Family House For Sale
4275 University Dr, Coral Gables, FL 33146

$2,675,000
Sold
Mila Bogatov
Mila Bogatov
Luxury Real Estate Broker

Details


  • MLS Number:A11576759
  • Virtual Tour: YES
  • List Price: $2,750,000
  • Sold Price: $2,675,000
  • Living Area: 2512 Ft² / 233 M²
  • Price Per Foot/Meter: $1,065 / $11,462
  • Bedrooms:3
  • Full Baths:3
  • Taxes:$11,611
  • Year Built:1960
  • Waterfront:YES
  • Listing Date:April 29, 2024
  • Sold Date: July 8, 2024
  • Days On Market:69

Description


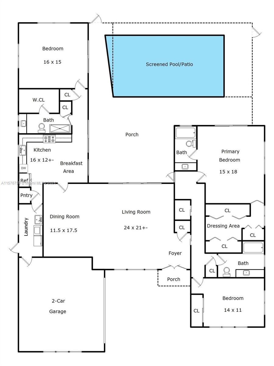
Dreaming about waterfront living in Coral Gables? The City Beautiful has many picturesque streets, and University Drive is among the favorites. Centrally located near Riviera country club, renowned golf courses, the University of Miami, and Miracle Mile, this over 11k sq ft lot on the waterway is full of possibility. This classic 3 bedroom, 3 bath home needs a total makeover but has really good bones and great potential. The split floor plan showcases generous size rooms throughout. Please see attached floorplan. The property sits high on the Coral Gables waterway in highly desirable Flood Zone X. The tile roof is only 10 years old. Make this home your own Very Special Home.

Features


  • Floor:Carpet, Marble
  • Interior Feature:BuiltinFeatures, BedroomonMainLevel, ClosetCabinetry, DiningArea, SeparateFormalDiningRoom, EntranceFoyer, FirstFloorEntry, SplitBedrooms, WalkInClosets
  • Exterior Feature:Fence, Lighting, StormSecurityShutters
  • Waterfront:CanalFront, NavigableWater, OceanAccess

Location


Request Information
Mila Bogatov
Mila Bogatov
Luxury Real Estate Broker