Pembroke Isles 1 2 bedroom Townhouse For Sale
2236 Nw 171st Ter, Pembroke Pines, FL 33028

$420,000
Sold
Mila Bogatov
Mila Bogatov
Luxury Real Estate Broker

Details


  • MLS Number:A11712684
  • Virtual Tour: YES
  • List Price: $420,000
  • Sold Price: $420,000
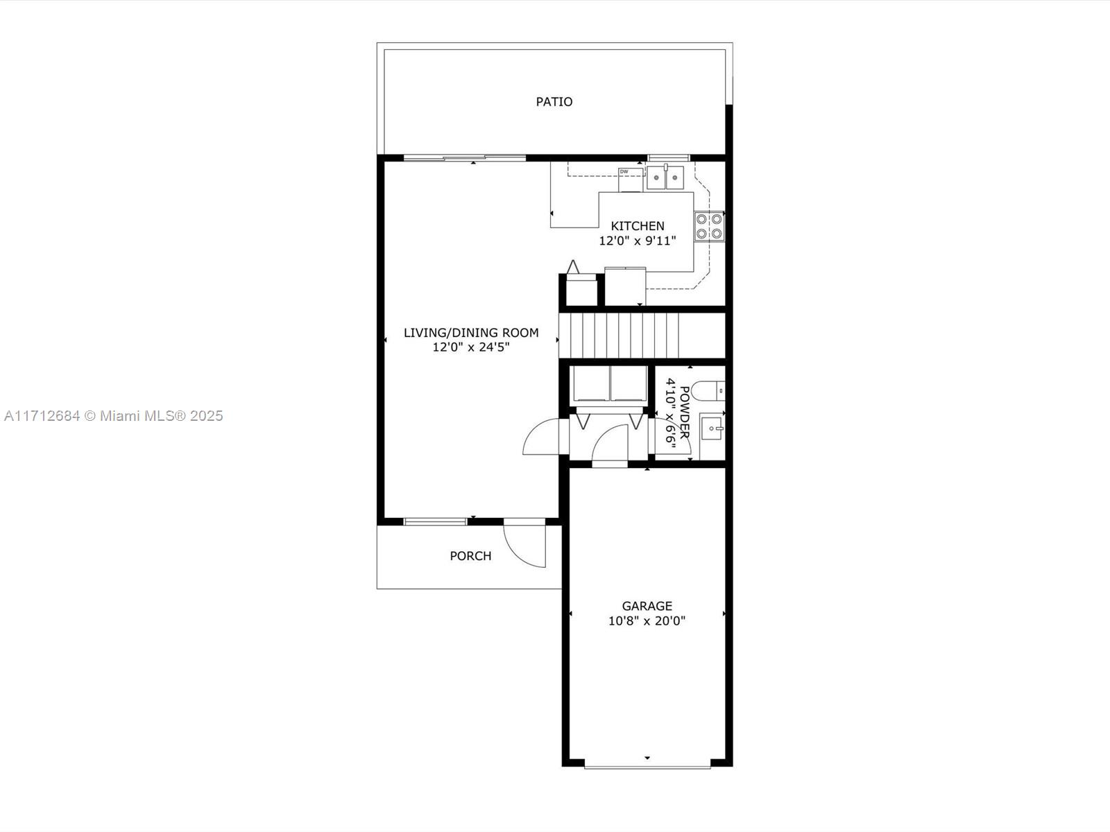
  • Living Area: 1123 Ft² / 104 M²
  • Price Per Foot/Meter: $374 / $4,026
  • Bedrooms:2
  • Full Baths:2
  • Half Baths:1
  • Maintenance:$391
  • Taxes:$7,454
  • Year Built:1998
  • Listing Date:December 23, 2024
  • Sold Date: June 30, 2025
  • Days On Market:188

Description


Beautifully designed 2-bedroom, 2-bathroom, and 1-car garage townhouse in the desirable gated community of Pembroke Isles offers comfort and convenience. The 2-story layout provides ample space, whether working from home or enjoying a relaxing day. The first floor features luxury vinyl throughout, renovated kitchen with white cabinets, stainless steel appliances, and generous counter space, seamlessly connecting to the dining and living areas; and renovated half bathroom for guests. Private patio with space to entertain. Bedrooms located on 2nd floor. Enjoy exceptional community amenities: an upscale clubhouse, 3 pools (1-adults only), basketball, volleyball, and tennis courts, fitness center, sauna, spa and children's playground. Close to I-75, shopping, and restaurants. A-Rated schools.

Features


  • Floor:Hardwood, Vinyl, Wood
  • Interior Feature:BreakfastArea, DualSinks, EatInKitchen, FirstFloorEntry, LivingDiningRoom, Pantry, UpperLevelPrimary
  • Exterior Feature:Fence, StormSecurityShutters

Location


Request Information
Mila Bogatov
Mila Bogatov
Luxury Real Estate Broker