Coral Gables Sec B 2 bedroom Single Family House For Sale
605 Navarre Ave, Coral Gables, FL 33134

$1,250,000
Sold
Mila Bogatov
Mila Bogatov
Luxury Real Estate Broker

Details


  • MLS Number:A11719240
  • Virtual Tour: YES
  • List Price: $1,390,000
  • Sold Price: $1,250,000
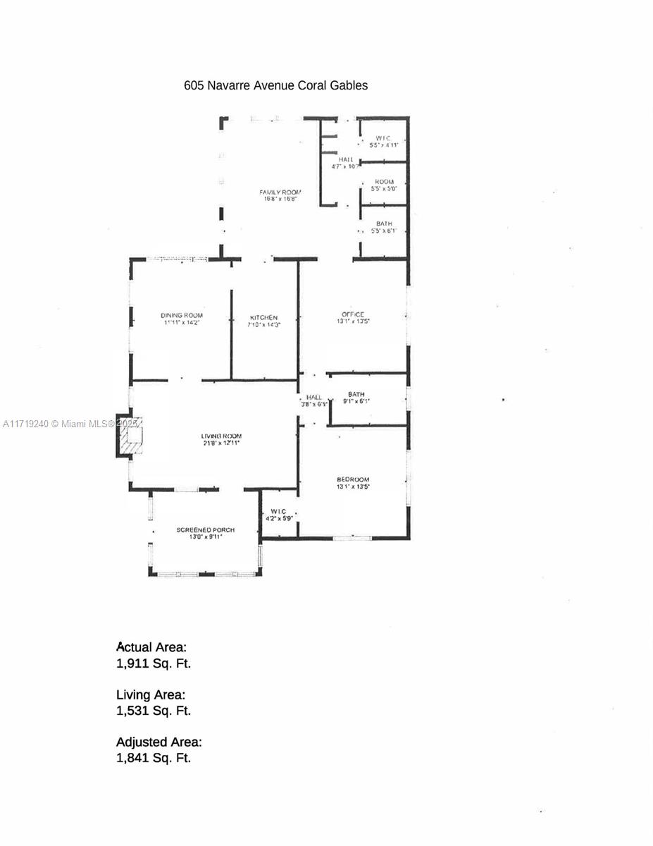
  • Living Area: 1531 Ft² / 142 M²
  • Price Per Foot/Meter: $816 / $8,788
  • Bedrooms:2
  • Full Baths:2
  • Taxes:$15,080
  • Year Built:1925
  • Listing Date:January 9, 2025
  • Sold Date: March 14, 2025
  • Days On Market:63

Description


Explore the charm of this old Spanish hacienda on a spacious 5,650 square foot lot (50 x 113). With approximately 1,841 square feet of living space, this home originally featured two bedrooms and one bath, built-in 1925 with a 1-car garage. A mid-1990s addition includes a large family room, full bath, laundry room, and a sizable closet, which can easily be converted into a third bedroom or a primary suite. The inviting front porch showcases a beamed ceiling and original multi-tile floor. Inside, the spacious living room features a fireplace and hardwood floors, while two bedrooms and a bath lie to the east, joined by a formal dining room and modern kitchen. The family room opens to a lovely backyard, complemented by a detached garage and ample brick driveway.

Features


  • Floor:Hardwood, Tile, Wood
  • Interior Feature:BedroomOnMainLevel, DiningArea, SeparateFormalDiningRoom, EntranceFoyer, FrenchDoorsAtriumDoors, FirstFloorEntry, Fireplace, WalkInClosets
  • Exterior Feature:Awnings, Fence, Lighting, Patio, StormSecurityShutters

Location


Request Information
Mila Bogatov
Mila Bogatov
Luxury Real Estate Broker