Coral Bay Sec B 4 bedroom Single Family House For Sale
860 San Pedro Ave, Coral Gables, FL 33156

$6,100,000
Sold
Mila Bogatov
Mila Bogatov
Luxury Real Estate Broker

Details


  • MLS Number:A11723189
  • List Price: $6,299,000
  • Sold Price: $6,100,000
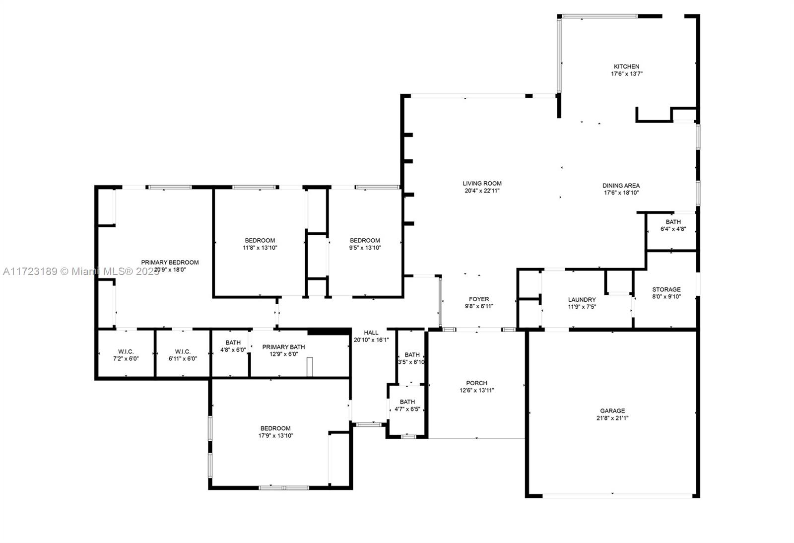
  • Living Area: 2721 Ft² / 253 M²
  • Price Per Foot/Meter: $2,242 / $24,131
  • Bedrooms:4
  • Full Baths:3
  • Maintenance:$300
  • Taxes:$28,186
  • Year Built:1960
  • Waterfront:YES
  • Listing Date:January 13, 2025
  • Sold Date: May 21, 2025
  • Days On Market:127

Description


Rare & Exceptional Opportunity to acquire Biscayne Bay/Atlantic Ocean property to build custom home of your dreams. Situated at the end of wide & deep canal in Gables by the Sea, upscale guard gated community of custom waterfront homes in Coral Gables, "the City Beautiful". Newly built home elevated per code w/ spectacular direct & unobstructed gorgeous views of Bay & ocean. The 12,000 Sq Ft lot has 100 running Ft of waterfront, capable of handling large vessel. Home is larger than Tax Rolls under AC per owner. The area Boasts finest public & private schools, 5 star restaurants, high-end shopping, protected beach, parks, Pinecrest Gardens with community center & library, University of Miami offering endless cultural & sporting events, & the renowned Fairchild Botanical Gardens close by.

Features


  • Floor:Other
  • Interior Feature:BuiltInFeatures, BedroomOnMainLevel, EntranceFoyer, FirstFloorEntry, GardenTubRomanTub, MainLevelPrimary, Pantry, Workshop
  • Exterior Feature:Fence, FruitTrees, Lighting, Patio
  • Waterfront:Bayfront, NoFixedBridges, OceanAccess, Seawall

Location


Request Information
Mila Bogatov
Mila Bogatov
Luxury Real Estate Broker