Country Lake Manors Sec 3 3 bedroom Single Family House For Sale
19653 Nw 62nd Pl, Hialeah, FL 33015

$645,000
Sold
Mila Bogatov
Mila Bogatov
Luxury Real Estate Broker

Details


  • MLS Number:A11775980
  • Virtual Tour: YES
  • List Price: $665,000
  • Sold Price: $645,000
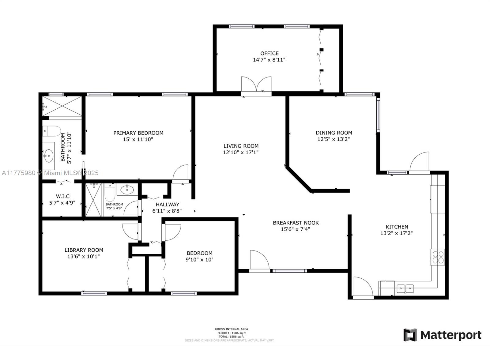
  • Living Area: 1540 Ft² / 143 M²
  • Price Per Foot/Meter: $419 / $4,508
  • Bedrooms:3
  • Full Baths:2
  • Maintenance:$38
  • Taxes:$3,371
  • Year Built:1985
  • Listing Date:April 3, 2025
  • Sold Date: May 23, 2025
  • Days On Market:49

Description


Step inside to vaulted ceilings, upgrades galore and a multitude of living spaces to spend your days. The kitchen is the heart of the home and this heart features gorgeous granite countertops, premium cabinetry, luxury appliance brands, a high-end extracting hood and the perfect setting for entertaining while you get your chef on. Out your french doors relax under an expansive covered patio and delight in the sight and sounds of your very own Koi Pond surrounded by beautiful lush vegetation. Home offers a 2019 flat-tiled roof with solar panels and accordion shutters all around offering insurance reductions and full storm protection. This Home has beautifully upgraded bathrooms, tile floors throughout, an oversized driveway, curb appeal, a 2 car garage and an extra den area.

Features


  • Floor:Tile
  • Interior Feature:BedroomOnMainLevel, DiningArea, SeparateFormalDiningRoom, EatInKitchen, FirstFloorEntry
  • Exterior Feature:Patio, StormSecurityShutters

Location


Request Information
Mila Bogatov
Mila Bogatov
Luxury Real Estate Broker