Riviera Waterways 4 bedroom Single Family House For Sale
6400 Caballero Blvd, Coral Gables, FL 33146

$4,700,000
Sold
Mila Bogatov
Mila Bogatov
Luxury Real Estate Broker

Details


  • MLS Number:A11804147
  • Virtual Tour: YES
  • List Price: $4,900,000
  • Sold Price: $4,700,000
  • Living Area: 3171 Ft² / 295 M²
  • Price Per Foot/Meter: $1,482 / $15,954
  • Bedrooms:4
  • Full Baths:4
  • Taxes:$27,513
  • Year Built:1958
  • Waterfront:YES
  • Listing Date:May 16, 2025
  • Sold Date: September 10, 2025
  • Days On Market:116

Description


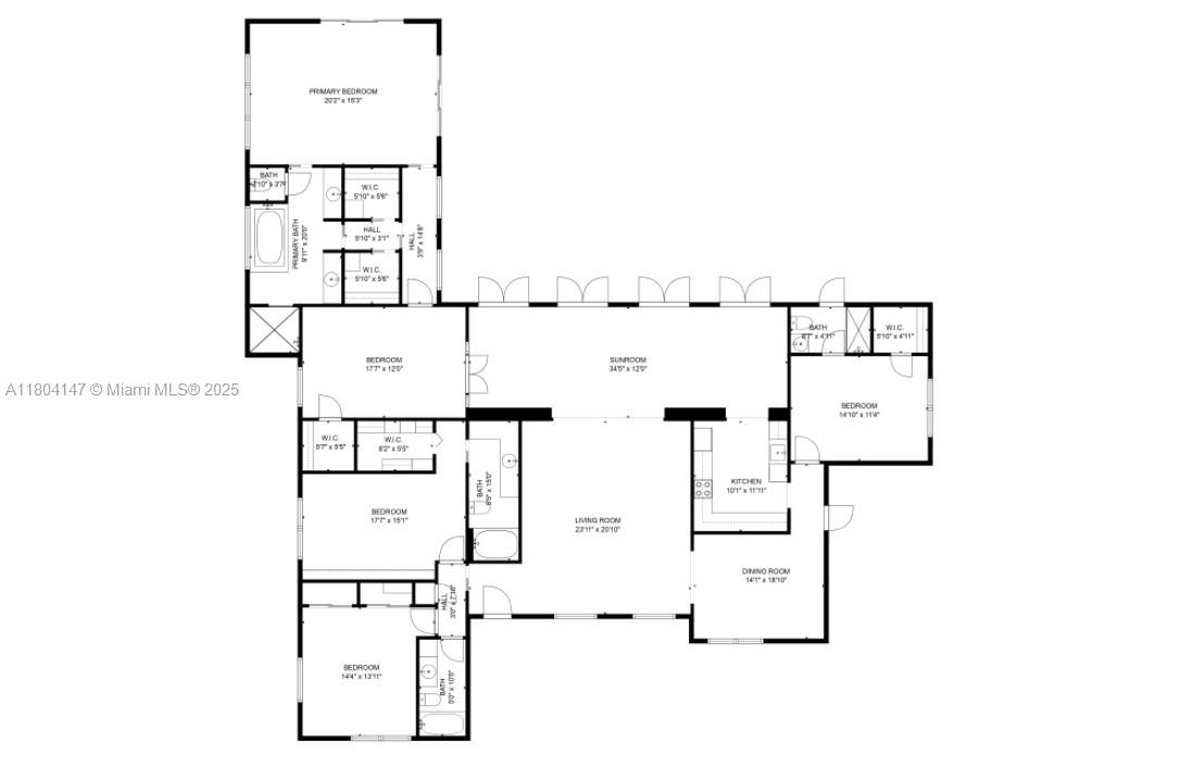
Tucked away on one of the city's most serene streets and in a prime waterfront location in Coral Gables, this remarkable property offers an unmatched living experience. With over 118 feet of waterfront and easy ocean access thru scenic Mahi Waterways, you'll be living minutes from the sea. Situated on a spacious 19,627 sq. ft. lot, the possibilities are endless. Whether you choose to renovate the existing 3,191 sq. ft. home with four bedrooms and four en-suite baths, featuring an L-shaped layout, or create your dream home from scratch, there is ample space to bring your vision to life. Perfect for boating enthusiasts eager to explore the golden waters at a moment's notice. Sold As is. Please for offers use only the latest version FARBAR-ASIS-7 Rev.12/24.

Features


  • Floor:Hardwood, Other, Tile, Wood
  • Interior Feature:BuiltInFeatures, BedroomOnMainLevel, ClosetCabinetry, DualSinks, EntranceFoyer, FrenchDoorsAtriumDoors, FirstFloorEntry, SeparateShower, WalkInClosets
  • Exterior Feature:Fence
  • Waterfront:CanalFront, NavigableWater, OceanAccess
Request Information
Mila Bogatov
Mila Bogatov
Luxury Real Estate Broker