Pembroke Falls Phase 4A 4 bedroom Single Family House For Sale
13715 Nw 21st St, Pembroke Pines, FL 33028

$870,000
Sold
Mila Bogatov
Mila Bogatov
Luxury Real Estate Broker

Details


  • MLS Number:A11925054
  • Virtual Tour: YES
  • List Price: $885,000
  • Sold Price: $870,000
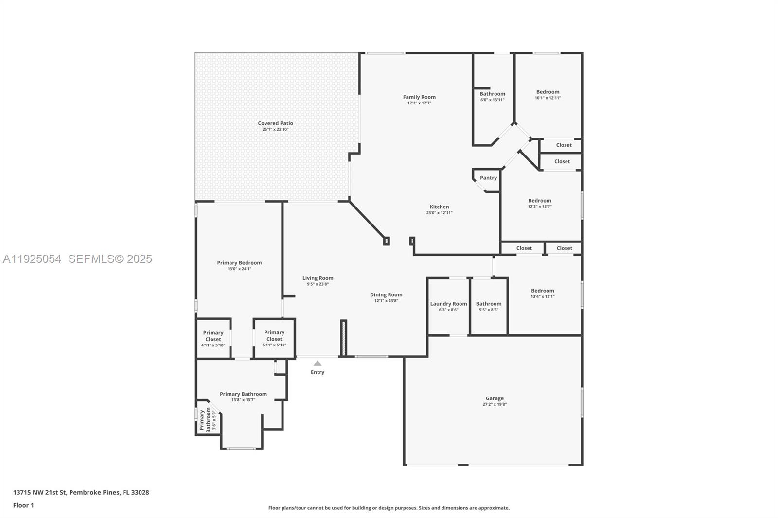
  • Living Area: 2444 Ft² / 227 M²
  • Price Per Foot/Meter: $356 / $3,832
  • Bedrooms:4
  • Full Baths:3
  • Maintenance:$375
  • Taxes:$9,652
  • Year Built:1999
  • Listing Date:December 4, 2025
  • Sold Date: January 7, 2026
  • Days On Market:33

Description


YOUR WAIT IS OVER..... 4 Bedroom, 3 Bath, 3 Car Garage ***YALE MODEL - POOL HOME*** in Sought After EDGEWATER at PEMBROKE FALLS. Features an Open Floorplan, Kitchen w/Granite Countertops, Stainless Steel Appliances, Gas Range, Island/Serving Bar, Spacious Master Suite, His & Her's Walk-in Closets, Spa Style Bath, Dual Floating Vanities, Frameless Glass Shower Enclosure, Large Soaking Tub, Generous Guest Rooms, Freshly Painted Interior & Exterior, Modern LED Lighting ***NEW DESIGNER PLANK FLOORING THROUGHOUT*** Recently Renovated Expansive Covered Patio w/Retractable Awning ***REFRESHING POOL & SPA****NEW 2025 A/C***2023 W/H*** Accordion Shutters, Fenced Grounds, and Wide Multi-Car Driveway. Resort Style Club House: Heated Pool & Spa, Fitness Rooms, Tennis, Pickleball, Basketball, Ballroom, Children's Playgrounds & Four 24HR Manned Security Entrances. HOA Includes Cable, Internet & Alarm. Convenient to Shopping, Dining, Entertainment, Travel, TOP RATED SCHOOLS, and more. ***FIVE YEAR ROOF CERTIFICATION ATTACHED***

Features


  • Floor:Tile, Vinyl
  • Interior Feature:BreakfastBar, BreakfastArea, DualSinks, GardenTubRomanTub, KitchenIsland, LivingDiningRoom, Pantry, SplitBedrooms, SeparateShower, WalkInClosets, Attic
  • Exterior Feature:Awnings, Fence, Porch, Patio, StormSecurityShutters

Location


Request Information
Mila Bogatov
Mila Bogatov
Luxury Real Estate Broker