Cutler Bay Ests 2 Addn 4 bedroom Single Family House For Sale
5940 Sw 134 St, Pinecrest, FL 33156

$870,000
Sold
Mila Bogatov
Mila Bogatov
Luxury Real Estate Broker

Details


  • MLS Number:A2006554
  • Virtual Tour: YES
  • List Price: $925,000
  • Sold Price: $870,000
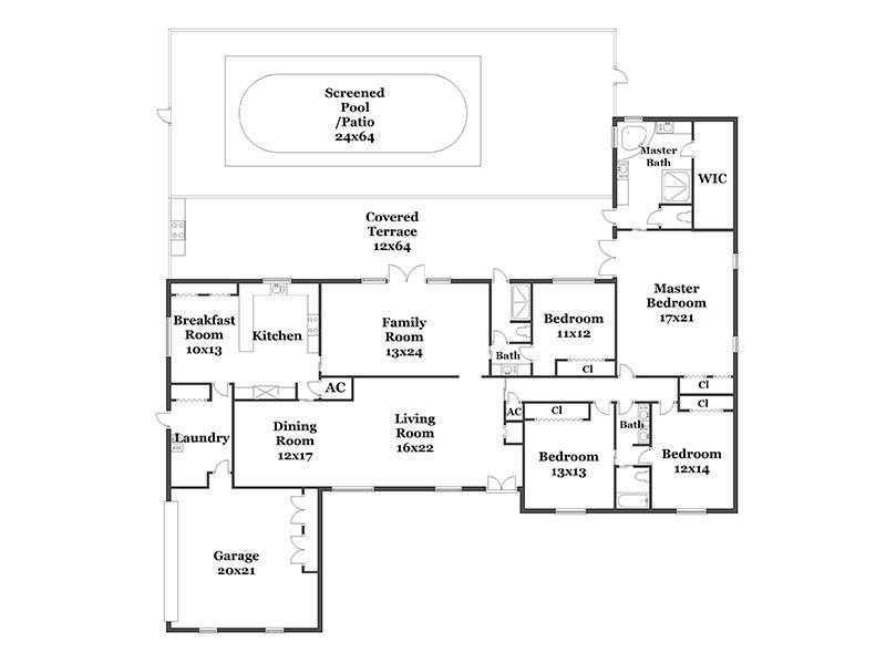
  • Living Area: 3547 Ft² / 330 M²
  • Price Per Foot/Meter: $245 / $2,640
  • Bedrooms:4
  • Full Baths:3
  • Taxes:$7,831
  • Year Built:1979
  • Pets Allowed:YES
  • Listing Date:September 16, 2014
  • Sold Date: March 6, 2015
  • Days On Market:170

Description


Very few homes can boast "Guard Gated in Pinecrest Elem school district and under $1 Million!" Reconstructed above industry standards by Shear Homes in 1993 with many features invisible to the eye! The graciously sized rooms offer a comfortable lifestyle, ideal for entertaining. Formal LR, DR, eat-in kitchen, separate FR, oversized laundry room. The master suite overlooks the lovely pool/patio and has a generous walk-in closet and lavish bath. Built in BBQ in screened patio!

Features


  • Equipment Appliances:Intercom
  • Floor:Carpet, Tile
  • Interior Feature:BuiltinFeatures, BedroomonMainLevel, DiningArea, SeparateFormalDiningRoom, EatinKitchen, FrenchDoorsAtriumDoors, FirstFloorEntry, Pantry, WalkInClosets, Attic, Intercom
  • Exterior Feature:Barbecue, EnclosedPorch, Fence, Lighting, Patio, TVAntenna
Request Information
Mila Bogatov
Mila Bogatov
Luxury Real Estate Broker