Pinecrest For Sale
7375 Sw 99th St, Pinecrest, FL 33156

$1,350,000
Sold
Mila Bogatov
Mila Bogatov
Luxury Real Estate Broker

Details


  • MLS Number:A11199549
  • Virtual Tour: YES
  • List Price: $1,400,000
  • Sold Price: $1,350,000
  • Taxes:$11,999
  • Listing Date:May 5, 2022
  • Sold Date: November 21, 2022
  • Days On Market:199

Description


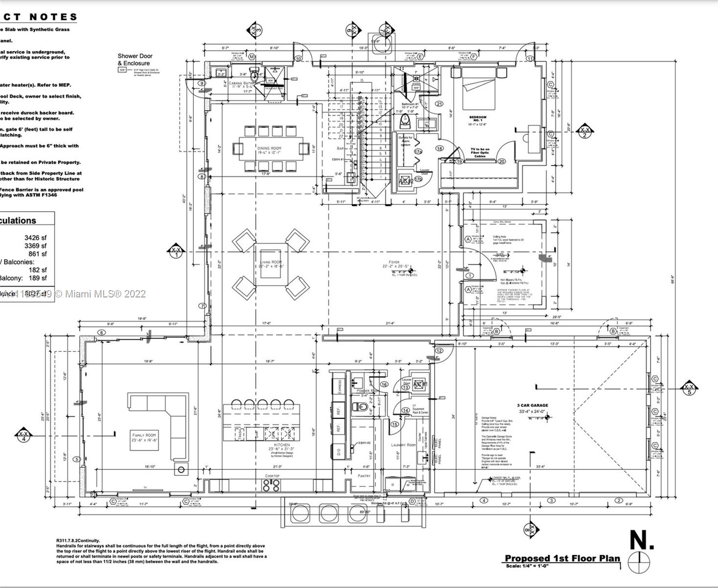
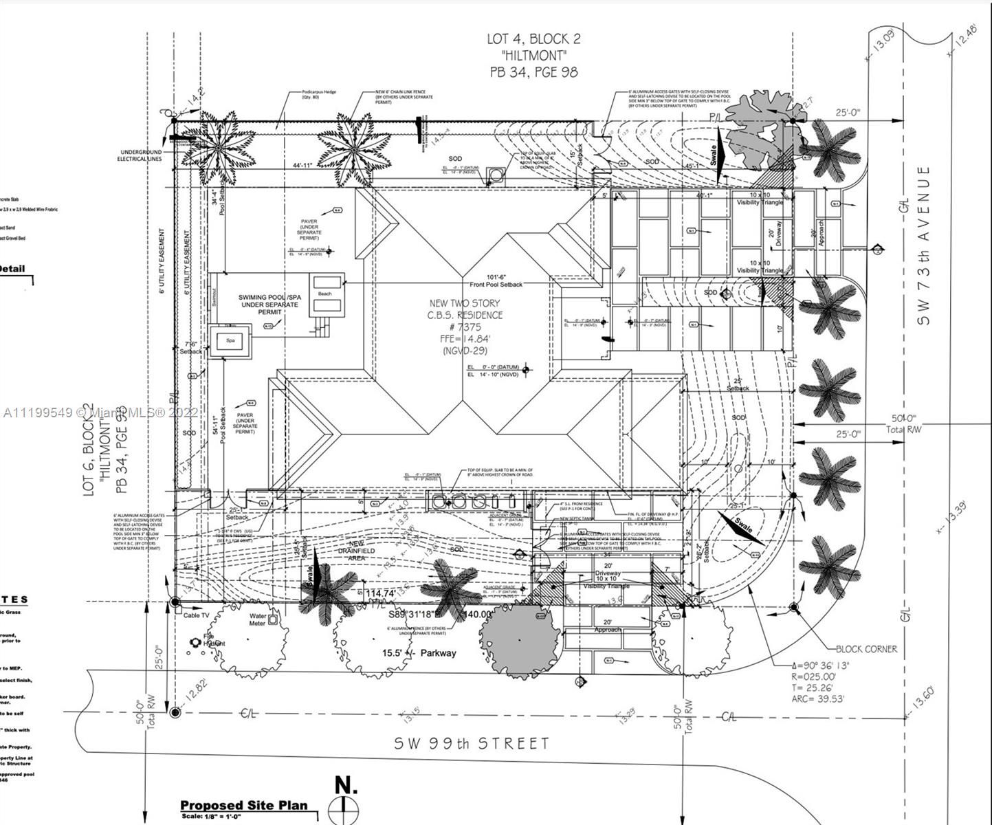
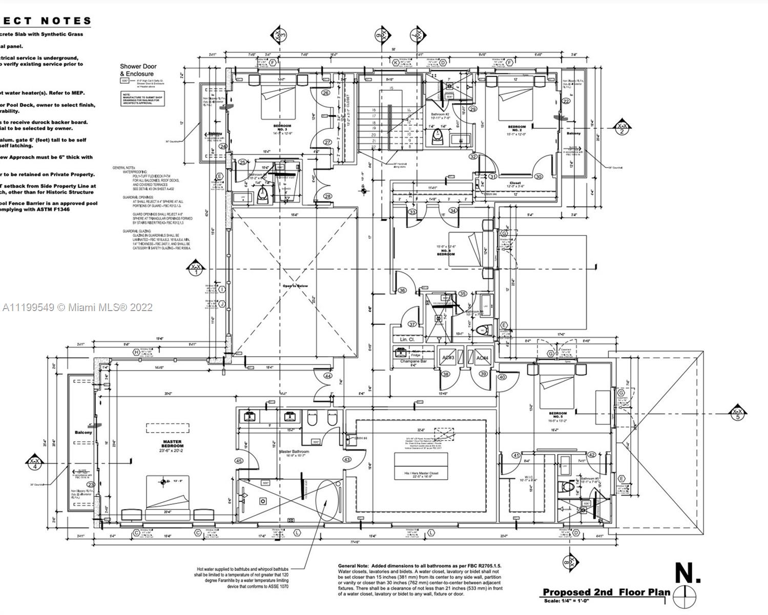
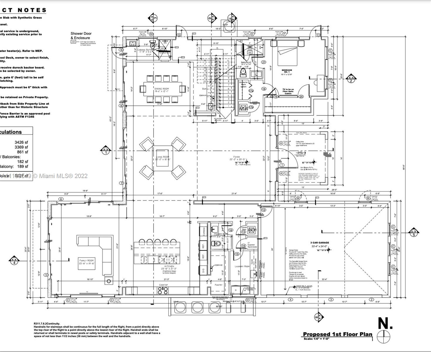
Build your custom dream home in highly sought after North Pinecrest! Price includes master permit and 'shovel-ready' land with approved plans by The Realization Group, plus the option to assume GC contract (already negotiated). Don't spend more money for someone else's 'house', when you can build your own customized 'home' at a much lower price. Spacious lot with over 15,000+ Sqft. Approved plans for a two-level, 6 bedroom, 8,143 Total SF home with air conditioned + electric car ready garage, both covered & uncovered terraces, generator + solar panel ready, and more! A+ Schools. Priced to sell! Also listed at $5.2mil for complete, move-in ready home (MLS A11199960).

Location


Request Information
Mila Bogatov
Mila Bogatov
Luxury Real Estate Broker