Wiles Road Center Business For Sale
12362 Wiles Road, Coral Springs, FL 33076

$510,000
Sold
Mila Bogatov
Mila Bogatov
Luxury Real Estate Broker

Details


  • MLS Number:A11207400
  • Virtual Tour: YES
  • List Price: $555,000
  • Sold Price: $510,000
  • Taxes:$4,887
  • Listing Date:May 19, 2022
  • Sold Date: September 15, 2022
  • Days On Market:118

Description


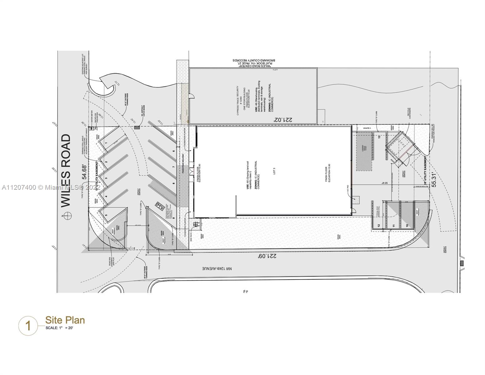
SITE PLAN APPROVED - Pre-Fabricated Steel building. 7,560 SF Interior. Exterior clad with finished corrugated metal panels that align to be continuous with roof. The building has been designed to house a showroom, conference room, office, kitchen, 2 ADA compliant bathrooms and a warehouse. The building will have a 2nd story mezzanine that will be used for storage. All openings indicated will be large missile impact rated windows and doors as approved by Miami-Dade standards. Parking is provided to comply with city requirements. The scope of work will include normal mechanical, electrical and plumbing. Flooring will be of a polished concrete throughout, except for the 2nd floor storage. That will be of a finished material. Ample vegetation is provided to comply with all city requirements.

Location


Request Information
Mila Bogatov
Mila Bogatov
Luxury Real Estate Broker