DI Lido Island For Sale
609 E Dilido Dr, Miami Beach, FL 33139

$4,325,000
Sold
Mila Bogatov
Mila Bogatov
Luxury Real Estate Broker

Details


  • MLS Number:A2156844
  • Virtual Tour: YES
  • List Price: $4,750,000
  • Sold Price: $4,325,000
  • Taxes:$52,490
  • Year Built:1938
  • Waterfront:YES
  • Listing Date:August 7, 2015
  • Sold Date: May 26, 2016
  • Days On Market:292

Description


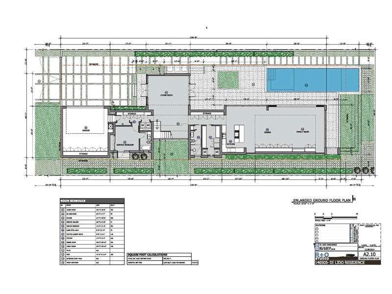
Opportunity to build custom home on HOT Venetian Islands. Partial wide bay view separates this lot from the rest. See plans and renderings on MLS. Structure and Design have been approved by DRB. City and county approval of MEP pending. Roof deck approve d.

Features


  • Waterfront:BayFront, OceanAccess

Virtual Tour


Request Information
Mila Bogatov
Mila Bogatov
Luxury Real Estate Broker