Business For Sale
940 71st St, Miami Beach, FL 33141

$35 / month
For Rent
Mila Bogatov
Mila Bogatov
Luxury Real Estate Broker

Details


  • MLS Number:A11653100
  • Virtual Tour: YES
  • List Price: $35
  • Taxes:$29,297
  • Year Built:1938
  • Listing Date:September 4, 2024
  • Days On Market:611

Description


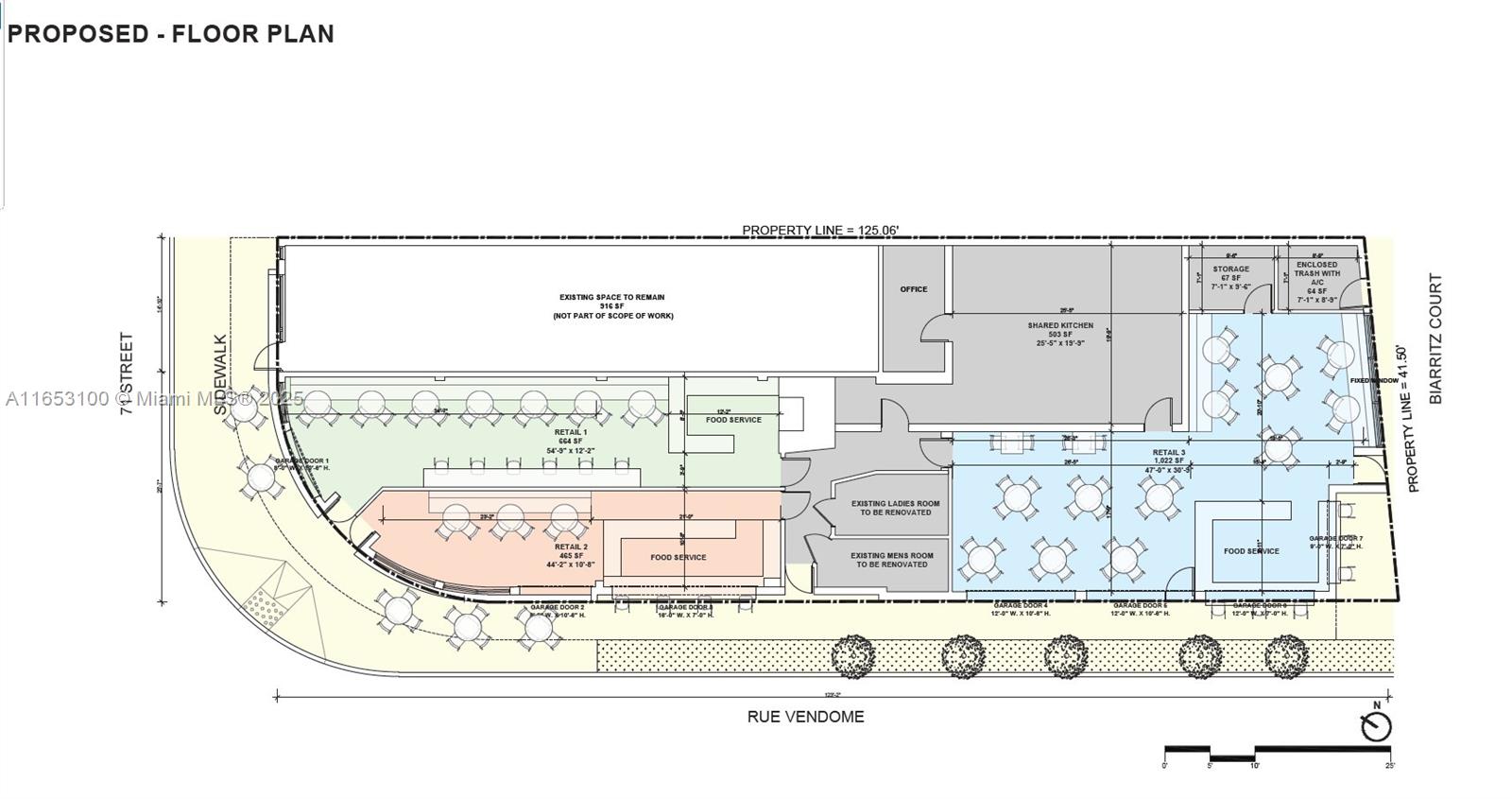
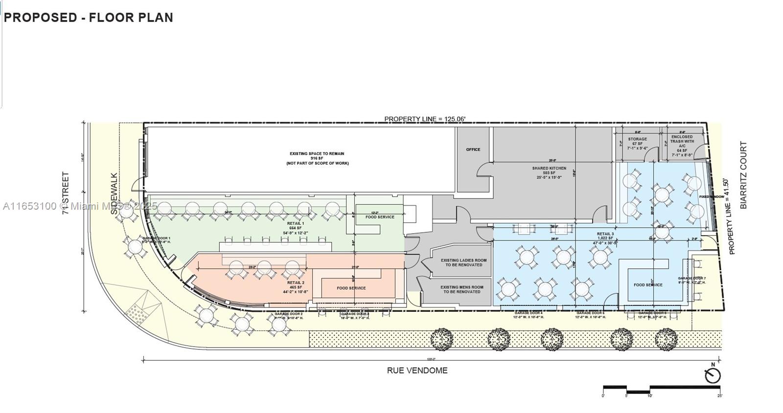
Exceptional opportunity to lease a 2nd generation restaurant. Adaptable zoning, from restaurant, office, retail & more. Situated in the central area of Normandy Isle and 71st, offers prime potential for diverse opportunities. This is one of the main roads that lead to and from Miami Beach. With a lot of national retailers nearby such Family Dollar, Sherwin William, Advance Auto and many local restaurants this location offers perfect opportunity for your business. As well it could be rented in 3 separate spaces, each offering access to a shared kitchen & common areas. Rate per sqft ranges from thirty five ($35)- sixty ($60) per sqft NNN

Features


  • Floor:Concrete
  • Interior Feature:
  • Exterior Feature:

Location


Request Information
Mila Bogatov
Mila Bogatov
Luxury Real Estate Broker