The Glades 5 bedroom Single Family House For Sale
1894 Aspen Ln, Weston, FL 33327

$1,175,000
Sold
Mila Bogatov
Mila Bogatov
Luxury Real Estate Broker

Details


  • MLS Number:A11906459
  • Virtual Tour: YES
  • List Price: $1,275,000
  • Sold Price: $1,175,000
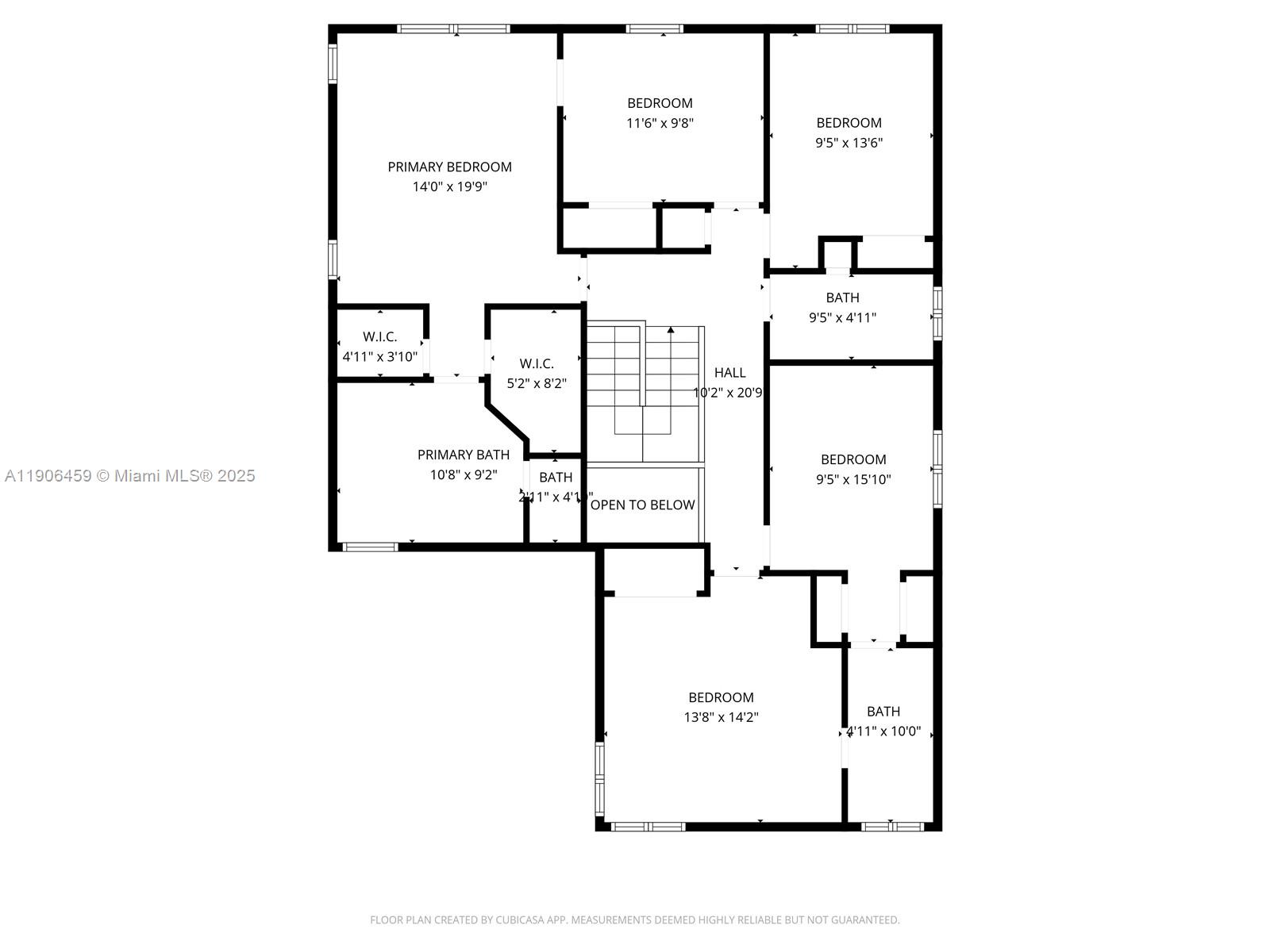
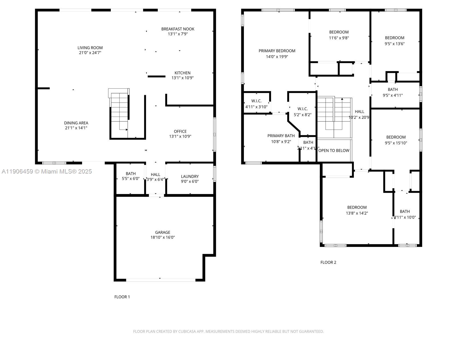
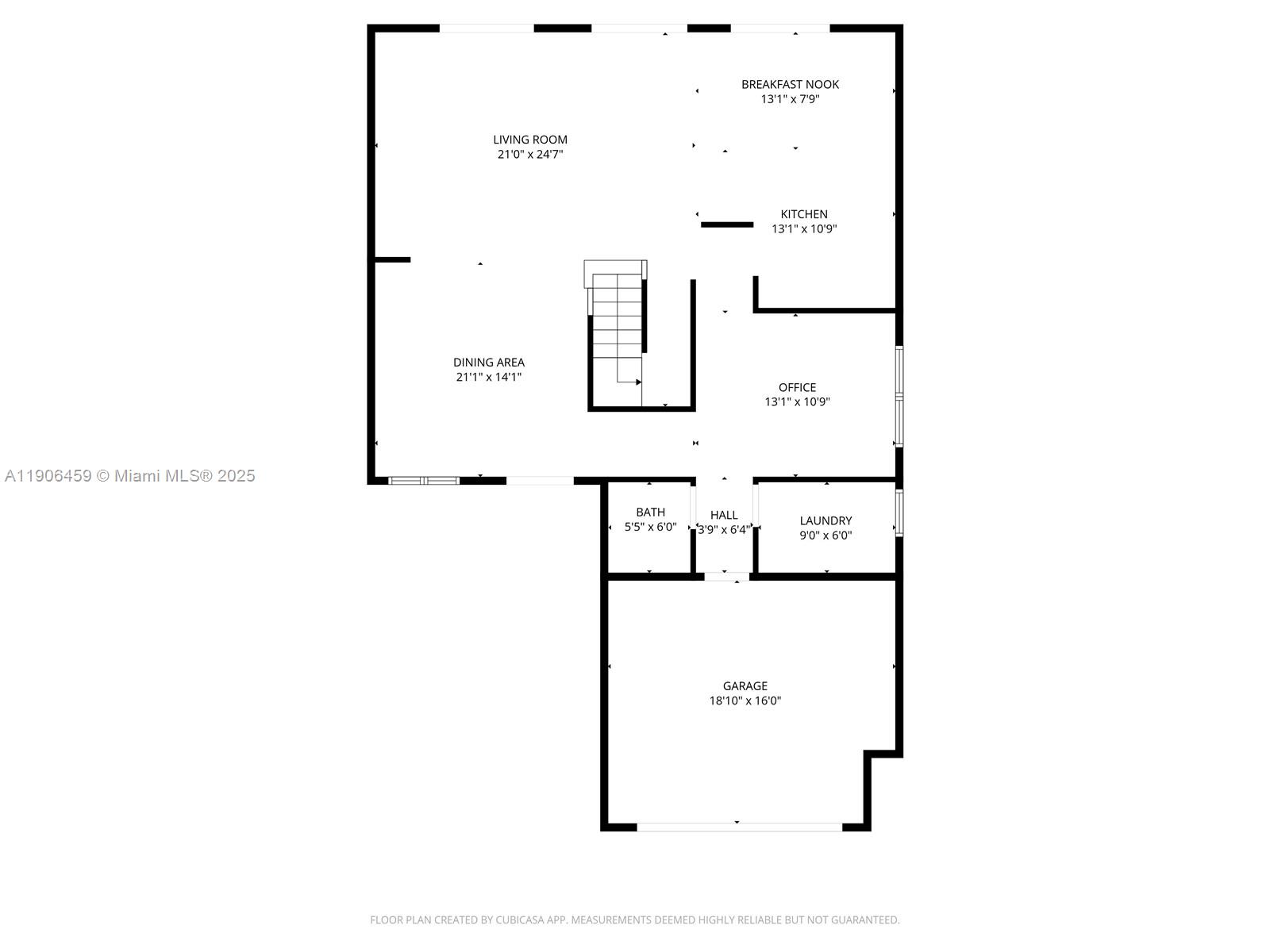
  • Living Area: 2672 Ft² / 248 M²
  • Price Per Foot/Meter: $440 / $4,733
  • Bedrooms:5
  • Full Baths:3
  • Half Baths:1
  • Maintenance:$590
  • Taxes:$10,089
  • Year Built:2001
  • Waterfront:YES
  • Listing Date:November 7, 2025
  • Sold Date: March 2, 2026
  • Days On Market:114

Description


Come for the home, stay for the sunsets! Fully upgraded tropical retreat with heated/jetted saltwater pool, travertine deck, screened patio, and custom pergola with summer kitchen. Enjoy stunning canal sunsets and total privacy—no rear neighbors! New A/C (2025), water heater (2024), Cat 5 Hurricane Impact windows/doors, plantation shutters. Built-in garage storage system. Kitchen and all 4 baths remodeled, 24x24 Porcelanosa floors, laminate upstairs, crown molding. Expanded driveway fits 3 vehicles. Lush yard with mature fruit trees (mango, avocado, soursop, lime, banana, orange, coconut), herb garden, and privacy hedges. Guard-gated community with resort-style pools; Olympic lap pool, pickleball, mini golf, café, and A+ schools. A rare blend of elegance, comfort, and everyday paradise.

Features


  • Floor:Laminate, Tile
  • Interior Feature:BreakfastBar, Bidet, BuiltInFeatures, ConvertibleBedroom, ClosetCabinetry, DiningArea, SeparateFormalDiningRoom, DualSinks, FrenchDoorsAtriumDoors, FirstFloorEntry, KitchenDiningCombo, LivingDiningRoom, Pantry, SeparateShower, UpperLevelPrimary, WalkInClosets, CentralVacuum
  • Exterior Feature:Fence, FruitTrees, Lighting, OutdoorGrill, Patio, SecurityHighImpactDoors, StormSecurityShutters
  • Waterfront:CanalAccess, CanalFront

Location


Request Information
Mila Bogatov
Mila Bogatov
Luxury Real Estate Broker